CET1-AX-LRA-00-50X-SF (N.º de pedido 104051)
Cabeza de lectura CET1-AX-…, M12, con bloqueo y monitorización de bloqueo
- Cabeza de lectura con dispositivo de bloqueo
- Fuerza de bloqueo de hasta 6500 N
- Categoría 4/PL e según EN ISO 13849-1.
- Con conector M12 (con capacidad de giro de 360°)
- 2 LED (1 asignable libremente)
- Dirección de ataque A (de fábrica)

Descripción
Combinaciones posibles
Adecuado para la conexión a una unidad de evaluación CES-AZ
Tensión de servicio del solenoide
- 24 V CC +10 %, -15 %
Tipo de bloqueo
CET1 | Principio del bloqueo sin tensión, bloqueo mediante fuerza de resorte. Desbloqueo aplicando tensión en el solenoide de bloqueo. |
Indicador de función LED
LED rojo | se ilumina cuando el solenoide recibe tensión |
LED verde | Asignable libremente |
Notas
- Para la conexión se necesitan cables de conexión especiales de EUCHNER. ¡Tenga esto en cuenta al hacer el pedido!
- El dispositivo debe utilizarse siempre en combinación con el actuador CET-A-…. El actuador debe pedirse por separado.
Desbloqueo auxiliar
Sirve para desbloquear el dispositivo de bloqueo con la ayuda de una herramienta. Para asegurarlo frente a una posible manipulación, el dispositivo de desbloqueo auxiliar debe sellarse (por ejemplo, utilizando laca de sellado).


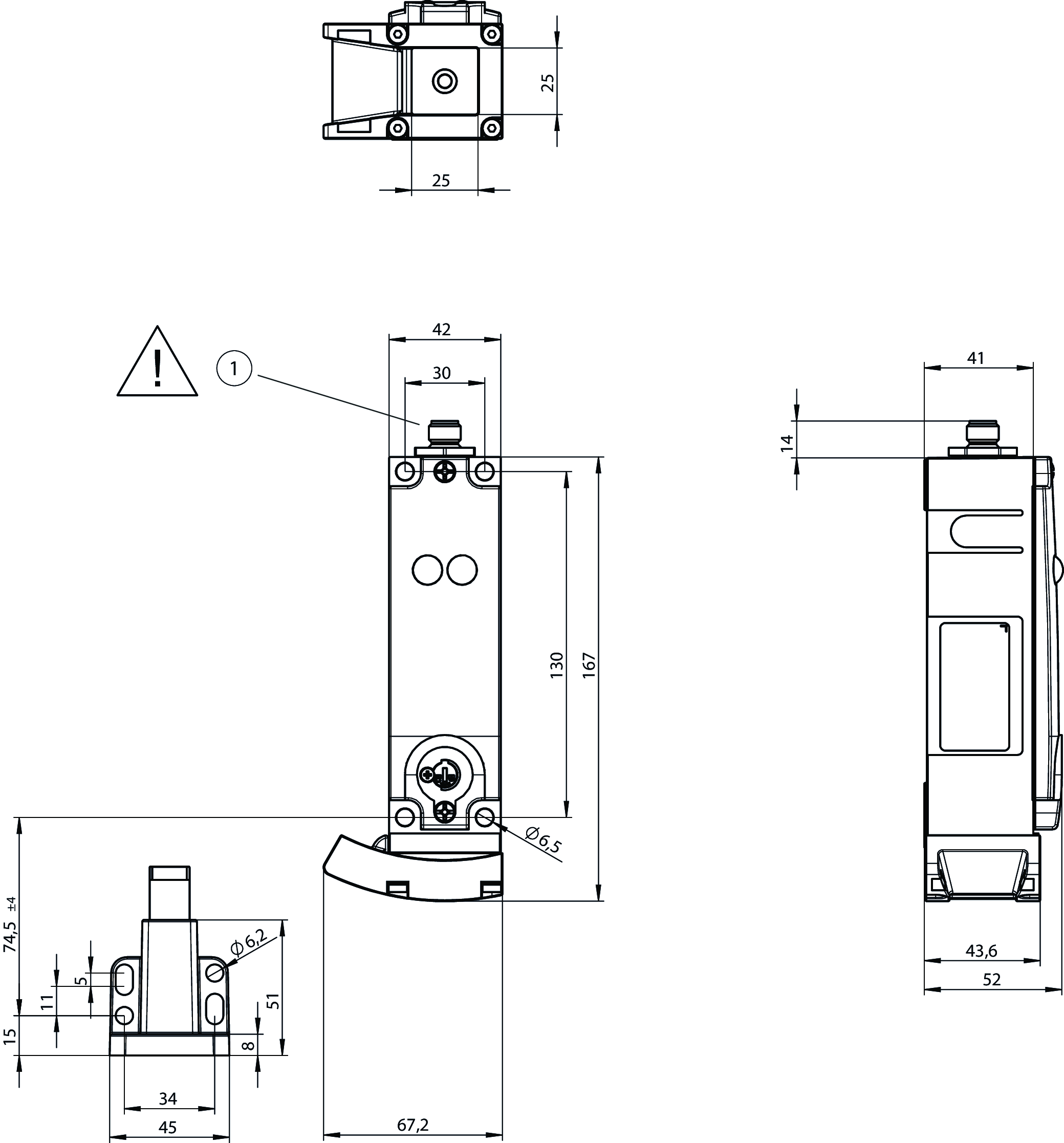
Dibujos acotados

| 1 | Conector M12, 8 polos, capacidad de giro de 360° |
Ejemplos de conexión

Datos técnicos
Homologaciones

Valores de conexión eléctrica
| Potencia de conexión | |
| Solenoide | 11 W |
| Tensión de aislamiento de referencia Ui | 50 V |
| Tensión nominal de impulso Uimp | 1.5 kV |
| Tensión de servicio CC | |
| LED | 24 V DC -15% ... +15% Protegida contra inversiones de polaridad |
| Tensión de servicio del solenoide CC | |
| UCM | 24 V DC -15% ... +10% protegida contra inversiones de polaridad, regulada, ondulación residual<5 %, PELV |
| Ciclo de trabajo del solenoide ED | 100 % |
| Clase de protección | III |
| Consumo de corriente | |
| ICM | 450 mA Solenoide |
| LED | max. 6 mA |
| Grado de contaminación (externa, según EN 60947-1) | 3 |
Valores mecánicos y entorno
| Anfahrgeschwindigkeit | max. 20 m/min |
| Tipo de conexión | 1 conector M12, 8 polos |
| Posición de montaje | Cualquiera |
| Frecuencia de conmutación | 1 Hz |
| Grado de libertad de movimiento X | ±5 mm |
| Grado de libertad de movimiento Y | ±5 mm |
| Grado de libertad de movimiento Z | ±4 mm |
| Temperatura de almacenamiento | -25 ... 70 °C |
| Vida mecánica | 2 x 10⁶ |
| Resistencia al choque y a la vibración | Según EN IEC 60947-5-3 |
| Clase de protección | IP67 (Con conector atornillado) |
| Temperatura ambiental | |
| Con UB = 24 V CC | -20 ... 55 °C |
| Material | |
| Rampa | Acero inoxidable |
| Interruptor de seguridad | Fundición de aluminio a presión |
| Fuerza de bloqueo Fmáx. | 6500 N |
| Fuerza de bloqueo FZh | 5000 N |
| Principio de bloqueo | Principio del bloqueo sin tensión |
Accesorios

AM-C-SW4-V3-161344
- Insertos de plástico para tornillos de hexágono interior con ancho de llave SW4
- Protección contra la manipulación eficiente para la fijación de interruptores de seguridad
- El suministro incluye insertos para 18 tornillos

AM-C-SW5-V3-161348
- Insertos de plástico para tornillos de hexágono interior con ancho de llave SW5
- Protección contra la manipulación eficiente para la fijación de interruptores de seguridad
- El suministro incluye insertos para 18 tornillos

RIEGEL CET-A-C
- Cerrojo para la familia de interruptores CET
- Cerrojo de acero
- Para puertas con sujeción a la derecha o a la izquierda
- Con sujeción de puerta
- Adecuado para una apertura de puerta de aprox. 15 mm

RIEGEL CET-A-C-C2308
- Cerrojo para la familia de interruptores CET
- Cerrojo de acero
- Para puertas con sujeción a la derecha o a la izquierda
- Sin tope de puerta
- Adecuado para una apertura de puerta de 15 mm
Descargas
Paquete completo
Descargue todos los documentos importantes con un solo clic.
Incluye:
- El manual de instrucciones y, en su caso, la documentación adicional correspondiente o las guías breves.
- En su caso, las fichas de datos como complemento al manual de instrucciones.
- La declaración de conformidad.
Documentos sueltos
Data sheet
Fiche technique
Datenblatt
Ficha de dados
数据表
データ シート
데이터 시트
Datový list
Data sheet
Fiche technique
Datenblatt
Ficha de dados
数据表
データ シート
데이터 시트
Datový list
Otros documentos
Macros ePlan
Datos de pedido
| N.º de pedido | 104051 |
| Nombre de artículo | CET1-AX-LRA-00-50X-SF |
| Peso bruto | 1,155kg |
| Partida arancelaria | 85365019000 |
| ECLASS | 27-27-24-05 Safety-related transponder switch with guardlocking |



















