RIEGEL CET-A-C (N.º de pedido 104309)
Cerrojo para interruptores de seguridad CET
- Cerrojo para la familia de interruptores CET
- Cerrojo de acero
- Para puertas con sujeción a la derecha o a la izquierda
- Con sujeción de puerta
- Adecuado para una apertura de puerta de aprox. 15 mm

Descripción
Alcance de suministros
- Cubierta AM-C-124721 para actuador CET
Pedido aparte:
- Interruptor de seguridad CET / cabeza de lectura CET.-AX
- Actuador CET
Tipos de puerta y sujeción de puerta
Adecuado para puertas batientes y correderas Adecuado para puertas con sujeción a la izquierda y a la derecha Con tope de puerta, la puerta no puede abrirse hacia dentro.
Cubierta
La cubierta AM-C-124721 impide eficazmente una manipulación del interruptor CET. La cubierta evita que se presione manualmente el perno de bloqueo pivotante del actuador con herramientas sencillas.
Pieza de bloqueo integrada
Mediante esta pieza, el cerrojo puede asegurarse en la posición abierta, por ejemplo, con cerraduras. Permite evitar que las personas se queden encerradas de forma accidental dentro de la zona de peligro.

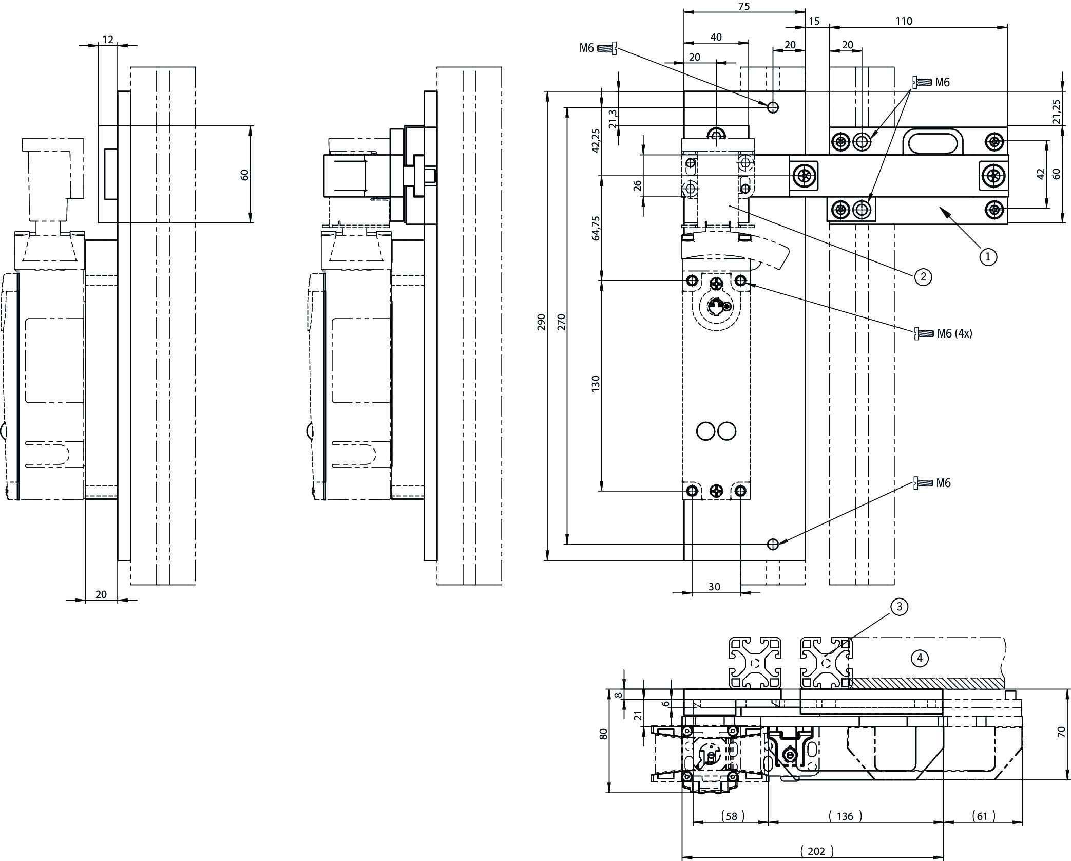
Dibujos acotados

| 1 | ¡Atención! El cerrojo no debe utilizarse con un dispositivo de desbloqueo antipánico. |
| 2 | Cubierta |
| 3 | Bastidor de la rejilla protectora (40 × 40) |
| 4 | Puertas con sujeción a la derecha |
Datos técnicos
Valores mecánicos y entorno
| Dirección de ataque | A o C |
| Número de interruptores de seguridad montables | 1 |
| Desbloqueo antipánico | Ninguno. |
| Temperatura de almacenamiento | -25 ... 70 °C |
| Material | |
| Listones guía | Plástico |
| Soporte de fijación | Acero con recubrimiento de polvo |
| Placa de base | Acero galvanizado |
| Manilla | Plástico |
Varios
| Parada | Ninguno. |
Descargas
Paquete completo
Descargue todos los documentos importantes con un solo clic.
Incluye:
- El manual de instrucciones y, en su caso, la documentación adicional correspondiente o las guías breves.
- En su caso, las fichas de datos como complemento al manual de instrucciones.
- La declaración de conformidad.
Documentos sueltos
Safety Information for Bolts
Information de sécurité pour verrous-targettes
Sicherheitsinformation für Riegel
Otros documentos
CAD/eCAD
Datos de pedido
| N.º de pedido | 104309 |
| Nombre de artículo | RIEGEL CET-A-C |
| Peso bruto | 2,981kg |
| Global Trade Item Number (GTIN) | 4047048006676 |
| Partida arancelaria | 83014090000 |





