MGBS-P-I-AP-U-R-ZZE-SBB-174183 (Obj. č. 174183)
Zvolte obsah
MGBS-P-I-AP, nouzové zastavení, 2× M12
- Blokovací modul bez jištění ochranného krytu (modul vnější kliky objednávejte zvlášť)
- Nastavitelný dveřní doraz, nastavení z výroby: vpravo
- Přímé připojení k decentralizovaným periferním systémům (např. ET 200 pro)
- Monitorování příčného zkratu
- 2× bezpečnostní výstup (polovodičový)
- Do kategorie 4 / úrovně vlastností PL „e“ podle normy EN ISO 13849-1
- 2× konektor M12
- Unicode
- Zastavení stroje

Popis
Dveřní doraz
Dveřní doraz lze nastavovat.
Vyhodnocování typu Unicode
Každý modul vnější kliky má vysokou úroveň kódování (Unicode). Modul s jištěním ochranného krytu detekuje pouze naučené moduly vnější kliky. Je možné naučit další moduly vnější kliky. Jednotka rozpozná vždy pouze modul vnější kliky, který byl naučen jako poslední.
Obsazení konektoru


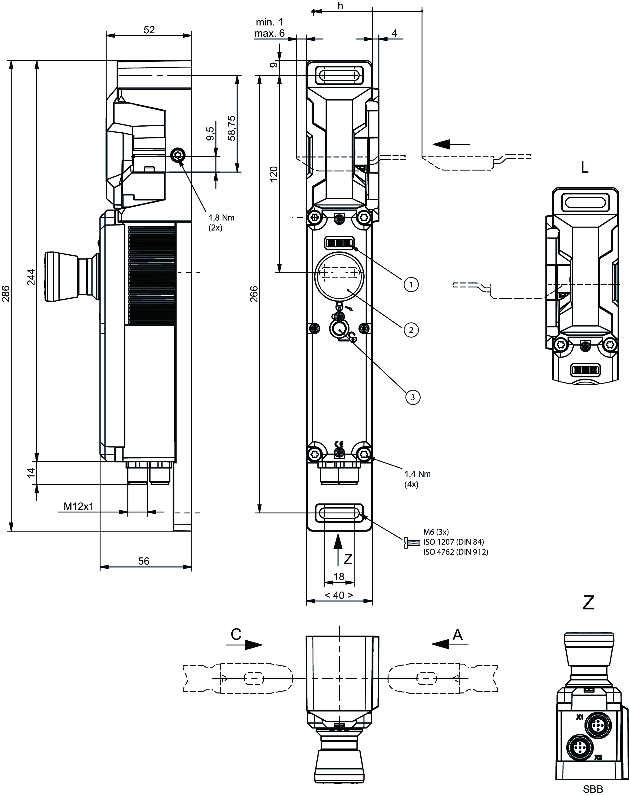
Rozměrové výkresy

| 1 | LED diody |
| 2 | Zastavení stroje |
| 3 | Pomocný odjišťovací prvek (bez funkce) |
Příklady připojení

Technické údaje
Schválení


Pracovní prostor
| Opakovatelná přesnost R | 10 % |
Ovládací a zobrazovací prvky
| Poloha | Barva | Doplňky | Provedení | Spínací jednotka | Vkládací štítek | Vkládací štítek | Počet | Označení1 | LED |
|---|---|---|---|---|---|---|---|---|---|
| 1 | Zastavení stroje | 2× nuceně rozpínaný kontakt |
Hodnoty elektrického připojení
| Zajištění | |
| Externí (napájecí napětí UB) | 0.25 ... 8 A |
| Příkon | 1 W |
| Návrhové izolační napětí Ui | 50 V |
| Jmenovité impulzní napětí Uimp | 0.5 kV |
| Napájecí napětí DC | |
| UUB | 24 V DC -15% ... +15% zabezpečeno proti přepólování, regulováno, zbytkové zvlnění<5 %, PELV |
| Požadavky na elektromagnetickou kompatibilitu | Podle normy EN IEC 60947-5-3 |
| Kategorie použití | |
| DC-13 | 24 V, 150 mA (Varování: Při indukční zátěži musejí být výstupy chráněny nulovou diodou) |
| Spínané zatížení | |
| Podle UL | 24 V DC, třída 2 (Alternativy viz návod k použití) |
| Třída ochrany | III |
| Odběr proudu | |
| IUB | 40 mA |
| Doba trvání zkušebního impulzu | max. 0.3 ms (Platí pro zátěž C<= 30nF a R<= 20 kΩ) |
| Interval testovacích impulzů | min. 100 ms |
| Stupeň znečištění (externí, podle EN 60947-1) | 3 |
| Bezpečnostní výstupy FO1A/FO1B | |
| Druh výstupu | 2× polovodičový výstup, PNP, odolný proti zkratu |
| Výstupní napětí | |
| HIGH U(FO1A) / U(FO1B) | UB-1.5 ... UB V DC |
| LOW U(FO1A) / U(FO1B) | 0 ... 1 V DC |
| Doba diskrepance | |
| Obou bezpečnostních výstupů | max. 10 ms Podle normy EN IEC 60947-5-3 |
| Doba do zapnutí | max. 400 ms |
| Zbytkový proud Ir | max. 0.25 mA |
| Spínací proud | |
| Na každém bezpečnostním výstupu FO1A/FO1B | 1 ... 150 mA |
Mechanické hodnoty a prostředí
| Anfahrgeschwindigkeit | max. 20 m/min |
| Typ připojení | 2× konektor M12, 5pól. |
| Vytahovací síla | 65 N |
| Prodleva do dosažení pohotovostního stavu | max. 1 s |
| Ovládací síla | 40 N |
| Montážní poloha | Dveřní závěs DIN pravý |
| Frekvence spínání | max. 0.5 Hz |
| Teplota při skladování | -25 ... 70 °C |
| Mechanická životnost | 1 x 10⁶ |
| Volný chod | 5 mm |
| Odolnost proti nárazům a vibracím | Podle normy EN IEC 60947-5-3 |
| Třída ochrany | IP65 (V zapojeném a zajištěném stavu) |
| Okolní teplota | |
| Při UB = 24 V DC | -20 ... 55 °C |
| Materiál | |
| Pouzdro bezpečnostního spínače | Termoplast zesílený skelnými vlákny |
| Konzola spínače | Zinkový tlakový odlitek |
Charakteristické hodnoty podle EN ISO 13849-1 a EN IEC 62061
| PL | Maximální SIL | PFHD | Kategorie | Doba provozu | |
|---|---|---|---|---|---|
| Monitorování polohy ochranného krytu | PL e | - | 4.1x10-9 | 4 | 20 y |
Různé
| Poznámky ke schválení UL | Provoz pouze s napájením opatřeným atestem UL-Class 2 nebo rovnocenným, viz návod k použití |
| Aretace | Zajišťovací čep |
Příslušenství
Připojovací materiál
Prodlužovací vedení z PUR M12 5pól., konektor z obou stran, 10 m

115565
C-M12F05-05X025PU10,0-M12M05-115565
C-M12F05-05X025PU10,0-M12M05-115565
- Zástrčka M12 s dutinkami, 5pól. (úhlová) / konektor M12 (přímý)
- Konektor z obou stran
- Kabel z PUR
- Délka kabelu 10 m
- S vývodem kabelu A (doprava)

115566
C-M12F05-05X025PU10,0-M12M05-115566
C-M12F05-05X025PU10,0-M12M05-115566
- Zástrčka M12 s dutinkami, 5pól. (úhlová) / konektor M12 (přímý)
- Konektor z obou stran
- Kabel z PUR
- Délka kabelu 10 m
- S vývodem kabelu C (doleva)
Připojovací kabel s 2 konektory M12, 5pól., 10 m

119947
C-M12F05-05X034PU10,0-M12M05-119947
C-M12F05-05X034PU10,0-M12M05-119947
- Zástrčka M12 s dutinkami – konektor M12, 5pól.
- Přímá spojka pro zástrčku s dutinkami a konektor
- Kabel z PUR
- Délka kabelu 10 m

100181
C-M12F05-05X034PV10,0-M12M05-100181
C-M12F05-05X034PV10,0-M12M05-100181
- Zástrčka M12 s dutinkami – konektor M12, 5pól.
- Přímá spojka pro zástrčku s dutinkami a konektor
- Kabel z PVC
- Délka kabelu 10 m
Připojovací kabel s 2 konektory M12, 5pól., 20 m

119971
C-M12F05-05X034PU20,0-M12M05-119971
C-M12F05-05X034PU20,0-M12M05-119971
- Zástrčka M12 s dutinkami – konektor M12, 5pól.
- Přímá spojka pro zástrčku s dutinkami a konektor
- Kabel z PUR
- Délka kabelu 20 m

100182
C-M12F05-05X034PV20,0-M12M05-100182
C-M12F05-05X034PV20,0-M12M05-100182
- Zástrčka M12 s dutinkami – konektor M12, 5pól.
- Přímá spojka pro zástrčku s dutinkami a konektor
- Kabel z PVC
- Délka kabelu 20 m
Připojovací kabel s 2 konektory M12, 5pól., 5 m

119932
C-M12F05-05X034PU05,0-M12M05-119932
C-M12F05-05X034PU05,0-M12M05-119932
- Zástrčka M12 s dutinkami – konektor M12, 5pól.
- Přímá spojka pro zástrčku s dutinkami a konektor
- Kabel z PUR
- Délka kabelu 5 m

100180
C-M12F05-05X034PV05,0-M12M05-100180
C-M12F05-05X034PV05,0-M12M05-100180
- Zástrčka M12 s dutinkami – konektor M12, 5pól.
- Přímá spojka pro zástrčku s dutinkami a konektor
- Kabel z PVC
- Délka kabelu 5 m
Připojovací kabel s úhlovým konektorem M12, 5pól., 10 m

113187
C-M12F05-05X025PU10,0-MA-113187
C-M12F05-05X025PU10,0-MA-113187
- Zástrčka M12 s dutinkami, 5pól.
- Úhlový konektor
- Kabel z PUR
- Délka kabelu 10 m
- Vývod kabelu A (doprava)
- Kabel s volným koncem

113190
C-M12F05-05X025PU10,0-MA-113190
C-M12F05-05X025PU10,0-MA-113190
- Zástrčka M12 s dutinkami, 5pól.
- Úhlový konektor
- Kabel z PUR
- Délka kabelu 10 m
- Vývod kabelu C (doleva)
- Kabel s volným koncem
Ke stažení
Celé balení
Stáhněte si všechny důležité dokumenty jedním kliknutím.
Obsahuje:
- Návod k použití a příp. dodatky k návodu k použití nebo stručné návody
- Příp. datové listy jako dodatek k návodu k použití
- Prohlášení o shodě
Stáhnout kompletní balíček (ZIP, 11,9 MB)
Jednotlivé dokumenty
Pokyny
Operating Instructions MGBS-P‑I‑AP… Unicode/Multicode
Č. dok.
Verze
Jazyk
Velikost
Operating Instructions MGBS-P‑I‑AP… Unicode/Multicode
Č. dok.
2527247
Verze
03/26
Jazyk
Velikost
2,6 MB
Mode d’emploi MGBS-P‑I‑AP… Uni-/multicode
Č. dok.
2527247
Verze
03/26
Jazyk
Velikost
2,6 MB
Manual de instrucciones MGBS-P‑I‑AP… Unicode/Multicode
Č. dok.
2527247
Verze
03/26
Jazyk
Velikost
2,6 MB
Betriebsanleitung MGBS-P-I-AP… Uni-/Multicode
Č. dok.
2527247
Verze
03/26
Jazyk
Velikost
2,6 MB
Istruzioni di impiego MGBS-P‑I‑AP… Unicode/Multicode
Č. dok.
2527247
Verze
03/26
Jazyk
Velikost
2,6 MB
操作説明書 MGBS-P‑I‑AP… ユニコード/マルチコード
Č. dok.
2527247
Verze
03/26
Jazyk
Velikost
3,1 MB
Prohlášení o shodě
EU-Konformitätserklärung
Č. dok.
Verze
Jazyk
Velikost
EU-Konformitätserklärung
Č. dok.
EDC2518511
Verze
Jazyk
Velikost
0,2 MB
UKCA-Konformitätserklärung
Č. dok.
Verze
Jazyk
Velikost
UKCA-Konformitätserklärung
Č. dok.
EDC20001509
Verze
Jazyk
Velikost
0,1 MB
Ostatní dokumenty
Prodejní doklady
Multifunctional Gate Box MGBS Slimline
Č. dok.
Verze
Jazyk
Velikost
Multifunctional Gate Box MGBS Slimline
Č. dok.
163691
Verze
03-03/20
Jazyk
Velikost
13,3 MB
Multifunctional Gate Box MGBS Slimline
Č. dok.
163692
Verze
03-03/20
Jazyk
Velikost
13,4 MB
Multifunctional Gate Box MGBS Slimline
Č. dok.
163693
Verze
03-03/20
Jazyk
Velikost
13,4 MB
Multifunctional Gate Box MGBS Slimline
Č. dok.
163690
Verze
03-03/20
Jazyk
Velikost
13,3 MB
製品/マルチファンクション-ゲート-ボックス- MGBS Slimline
Č. dok.
164508
Verze
03-03/20
Jazyk
Velikost
4,8 MB
Schválení a certifikáty
FCC
Č. dok.
Verze
Jazyk
Velikost
FCC
Č. dok.
Verze
Jazyk
Velikost
0,1 MB
IC
Č. dok.
Verze
Jazyk
Velikost
IC
Č. dok.
Verze
Jazyk
Velikost
0,6 MB
UQS CTP-AP-AR_MGBS-AP-AR_
Č. dok.
Verze
Jazyk
Velikost
UQS CTP-AP-AR_MGBS-AP-AR_
Č. dok.
ECO2123565
Verze
Jazyk
Velikost
0,2 MB
WEEE
Č. dok.
Verze
Jazyk
Velikost
WEEE
Č. dok.
ECO20001806
Verze
Jazyk
Velikost
0,1 MB
c UL us
Č. dok.
Verze
Jazyk
Velikost
c UL us
Č. dok.
Verze
Jazyk
Velikost
0,3 MB
Objednací údaje
| Obj. č. | 174183 |
| Název výrobku | MGBS-P-I-AP-U-R-ZZE-SBB-174183 |
| Hmotnost brutto | 1,85kg |
| Číslo celního tarifu | 85371098 |
| ECLASS | 27-27-24-03 Safety-related transponder switch |





