STA3A-4131A024-10C-DCX (주문 번호 099717)
콘텐츠 선택
안전 스위치 STA, 플러그 커넥터 BHA(MR10), 도어 위치용 접점
- 플러그 커넥터 BHA(MR10)
- 도어 위치용 접점
- 폐쇄회로 전류 원리

설명
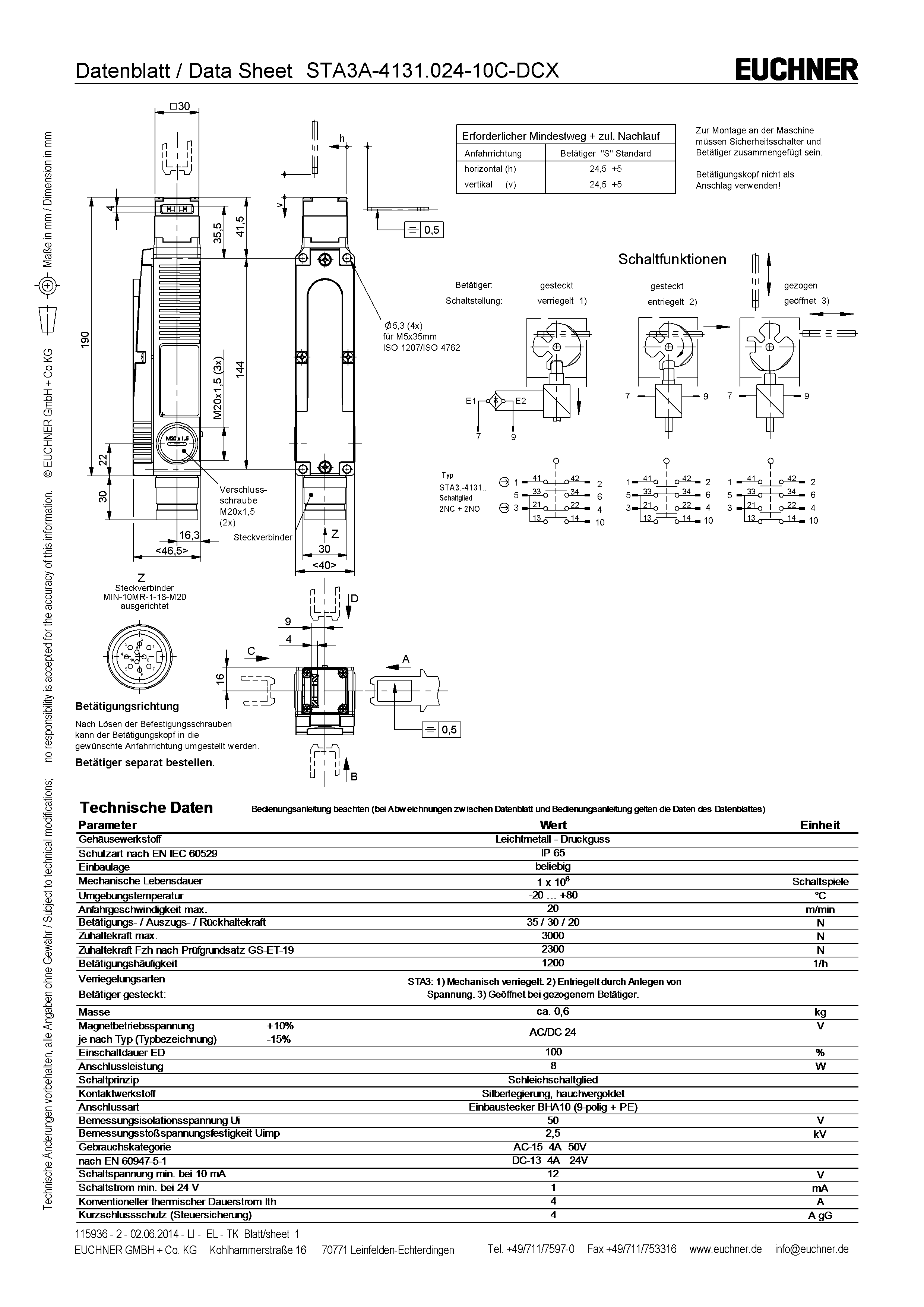
접근 방향
수평 및 수직
90° 단계로 조정할 수 있습니다
수평으로 접근하는 방향에 대해 오버 트래블 증가.
도어를 닫았을 때 더 큰 유격이 필요한 경우, 오버트래블이 있는 액추에이터를 사용할 수 있습니다. 이러한 액추에이터를 사용하면 도어가 닫혔을 때 그 도어를 구동 방향으로 약간 움직일 수 있습니다. 이는 예를 들어 안전 도어에 고무 엔드 스톱이 있는 경우 중요합니다. 오버트래블이 있는 액추에이터를 사용하면 압축 고무에서 발생하는 지속적인 압력을 줄일 수 있습니다. 이렇게 하면 스위치 헤드와 도어 메커니즘에 가해지는 부하가 감소합니다.
가드 잠금 원리
잠금을 해제하는 전원: 폐쇄회로 전류 원리를 기반으로 한 가드 잠금 기능이 있는 가드의 경우, 가드는 가드 잠금 솔레노이드로 전원이 공급될 때까지 스프링 힘에 의해 잠깁니다. 잠금은 솔레노이드 힘에 의해 해제됩니다. 기계적 가드 잠금이라는 용어도 사용됩니다.
스위칭 부재
4131 | 느린 동작 스위칭 접점 |
가드 잠금용 점점: 2개의 순방향 구동 접점 |
액세서리 필요
액추에이터가 포함되지 않았습니다.
기능 도면

치수 도면

| 1 | 플러그 커넥터 정렬됨 |
연결 예시

연결 예시

![]() | 도어 모니터링 |
![]() | 솔레노이드 모니터링 |
기술 자료
승인

전기 연결 값
| 헤징 | max. 4 A gG |
| 전력 소비량 | 8 W |
| 디스플레이 모듈 | 24 V -15% ... +10% |
| 정격 절연 전압 Ui | 50 V |
| 정격 임펄스 전압 Uimp | 2.5 kV |
| 활용 범주 | |
| AC-15 | 4A 50V |
| DC-13 | 4A 24V |
| 솔레노이드 작동 전압 | |
| AC/DC | 24 V -15% ... +10% |
| 솔레노이드 듀티 사이클 | 100 % |
| 스위칭 전압 | |
| 최소 10mA에서 | 12 V |
| 스위칭 전류 | |
| 최소 24V에서 | 1 mA |
| 정격 열전류 Ith | 4 A |
기계적 가치 및 환경
| Anfahrgeschwindigkeit | max. 20 m/min |
| 접근 방향 | A |
| 연결 유형 | |
| 1번 | 플러그 커넥터 BHA10 (9-핀 + PE) |
| 도어 위치 NO 접점의 수량 | 1 |
| 도어 잠금 모니터링 NO 접점의 수량 | 1 |
| 가드 로크 모니터링 순방향 구동 접점의 수량 | 2 |
| 인출력 | 30 N |
| 구동 주파수 | max. 1200 1/h |
| 구동력 | 35 N |
| 설치 방향 | 임의 |
| 삽입 깊이 | 24.5 mm |
| 보관 온도 | -25 ... 80 °C |
| 기계적 수명 | 1 x 10⁶ |
| 유지력 | 20 N |
| 전환 원리 | 느린 동작 스위칭 접점 |
| 보호 등급 | IP65 |
| 주변 온도 | -20 ... 80 °C |
| 재질 | |
| 하우징 | 합금 - 다이캐스트 |
| 접점 | 은합금, 금 도금 |
| 잠금력 Fmax | 3000 N |
| 잠금력 FZh | 2300 N |
| 가드 잠금 원리 | 폐쇄회로 전류 원리 |
EN ISO 13849-1 및 EN IEC 62061에 따른 특성 값
| B10D | 임무 시간 | |
|---|---|---|
| 가드 잠금장치의 모니터링 | 1.15x107 | 20 y |
| 중요! DC-13 100 mA/24V에서 유효한 값 | ||
| PL | 최대 SIL | 범주 | 임무 시간 | |
|---|---|---|---|---|
| 가드 잠금의 제어 | 가드 잠금의 외부 제어에 따라 다름 | 20 y | ||
액추에이터 ACTUATOR-S-GT-SN과 결합하여
| 오버트래블 | 5 mm |
부속품
액추에이터
다운로드
컴플리트 패키지
단 한번 클릭하여 중요한 모든 문서 다운로드.
내용물:
- 사용 설명서와 사용 설명서에 대한 보충 사항 또는 요약 설명서
- 사용 설명서를 보완하는 데이터 시트
- 적합성 선언
컴플리트 패키지 다운로드 (ZIP, 4,8 MB)
단일 문서
지침
Operating Instructions Safety Switch STA…
문서 번호
버전
언어
크기
Operating Instructions Safety Switch STA…
문서 번호
2096775
버전
04/25
언어
크기
1,7 MB
Mode d’emploi Interrupteur de sécurité STA…
문서 번호
2096775
버전
04/25
언어
크기
1,7 MB
Manual de instrucciones Interruptor de seguridad STA…
문서 번호
2096775
버전
04/25
언어
크기
1,7 MB
Betriebsanleitung Sicherheitsschalter STA…
문서 번호
2096775
버전
04/25
언어
크기
1,7 MB
Istruzioni di impiego Finecorsa di sicurezza STA…
문서 번호
2096775
버전
04/25
언어
크기
1,7 MB
使用说明书 安全开关 STA…
문서 번호
2096775
버전
04/25
언어
크기
2,1 MB
기타 다른 문서
승인 및 인증서
CCC
문서 번호
버전
언어
크기
CCC
문서 번호
20001849
버전
언어
크기
0,0 MB
WEEE
문서 번호
버전
언어
크기
WEEE
문서 번호
ECO20001806
버전
언어
크기
0,1 MB
ePlan 매크로
EUC.099717
문서 번호
버전
언어
크기
EUC.099717
문서 번호
버전
언어
크기
0,0 MB
CAD/eCAD
주문 데이터
| 주문 번호 | 099717 |
| 품목 명칭 | STA3A-4131A024-10C-DCX |
| 총중량 | 0,7kg |
| 세관품목분류번호 | 85365019000 |
| ECLASS | 27-27-26-03 Safety switch with guard control |
+ 2 NO 접점
























