RIEGEL STP-GFK (Rend. sz. 098121)
Válasszon tartalmat
Bolt for safety switches STA, STP, SGP and SGA
- Bolt for safety switches STA, STP, SGP and SGA
- Fiber glass reinforced plastic bolt
- For doors hinged on the left or right
- Suitable for a door gap of approx. 7 mm

Ismertetés
Scope of delivery
- Bolt parts
- Actuator
To be ordered separately:
- Switch bracket
- Safety switch
Door types and door hinges
Suitable for hinged or sliding doors Suitable for doors hinged on the left and right With door stop, door cannot be opened inwards.
Integrated lockout bar
With the aid of the integrated lockout bar, the bolt can be secured in the open position, e.g. using padlocks. It is possible to prevent people from being locked in the danger area unintentionally.

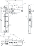
Dimensional drawings

| 1 | For doors hinged on the left the actuator is to be mounted on this side and the approach direction for the switch and bolt changed. |
| 2 | Safety switch TP.../STP... Approach direction A |
| 3 | Cut-out for switch with escape release |
| 4 | Door gap |
| 5 | Safety guard frame (40x40) |
| 6 | Door radius |
| 7 | Door hinged on the right |
| 8 | Attention: Excessively high forces and energies can result in the failure of the plastic bolt. A risk analysis is to be undertaken by the user prior to installation. |
Műszaki adatok
Mechanical values and environment
| Approach direction | A or C |
| Number of safety switches that can be mounted | 1 |
| Escape release | None |
| Storage temperature | -25 ... 70 °C |
| Material | |
| Guide strips | Plastic |
| Switch bracket | Plastic |
| Base plate | Plastic |
| Handle | Plastic |
Miscellaneous
| Detent mechanism | None |
Tartozékok
Letöltések
Teljes csomag
Minden fontos dokumentum letöltése egyetlen kattintással.
Tartalom:
- A használati utasítás és a használati utasítás vagy a rövid utasítás kiegészítései
- A használati utasítást kiegészítő adatlapok
- A megfelelőségi nyilatkozat
Teljes csomag letöltése (ZIP, 9,1 MB)
Egyedi dokumentumok
Instructions
Safety Information for Bolts
Dok. sz.
Változat
Nyelv
Méret
Safety Information for Bolts
Information de sécurité pour verrous-targettes
Información de seguridad para cerrojos
Sicherheitsinformation für Riegel
Information de sécurité pour verrous-targettes
Información de seguridad para cerrojos
Sicherheitsinformation für Riegel
Dok. sz.
2530033
Változat
04-03/24
Nyelv
Méret
0,2 MB
Sicherheitsinformation für Riegel
Dok. sz.
2530033
Változat
04-03/24
Nyelv
Méret
0,2 MB
Informação de segurança referente ao trinco
Dok. sz.
2530033
Változat
04-03/24
Nyelv
Méret
0,4 MB
Informazioni sulla sicurezza per il chiavistello
Dok. sz.
2530033
Változat
04-03/24
Nyelv
Méret
0,1 MB
Bezpečnostní informace pro petlice
Dok. sz.
2530033
Változat
04-03/24
Nyelv
Méret
0,5 MB
Tolózár biztonsági információi
Dok. sz.
2530033
Változat
04-03/24
Nyelv
Méret
0,5 MB
Информация за безопасност за ригели
Dok. sz.
2530033
Változat
04-03/24
Nyelv
Méret
0,5 MB
Sikkerhedsinformation for bolte
Dok. sz.
2530033
Változat
04-03/24
Nyelv
Méret
0,4 MB
Ohutusalane teave riivistuste kohta
Dok. sz.
2530033
Változat
04-03/24
Nyelv
Méret
0,5 MB
Turvallisuustietoja salvalle
Dok. sz.
2530033
Változat
04-03/24
Nyelv
Méret
0,4 MB
Πληροφορίες ασφαλείας για μάνδαλα
Dok. sz.
2530033
Változat
04-03/24
Nyelv
Méret
0,5 MB
Sigurnosne informacije za brave
Dok. sz.
2530033
Változat
04-03/24
Nyelv
Méret
0,5 MB
Aizbīdņu drošības informācija
Dok. sz.
2530033
Változat
04-03/24
Nyelv
Méret
0,5 MB
Saugos informacija skląsčiui
Dok. sz.
2530033
Változat
04-03/24
Nyelv
Méret
0,5 MB
Veiligheidsinformatie voor grendels
Dok. sz.
2530033
Változat
04-03/24
Nyelv
Méret
0,4 MB
Sikkerhetsinformasjon for låser
Dok. sz.
2530033
Változat
04-03/24
Nyelv
Méret
0,4 MB
Informacje o bezpieczeństwie dotyczące użytkowania zasuw
Dok. sz.
2530033
Változat
04-03/24
Nyelv
Méret
0,5 MB
Säkerhetsinformation för regeln
Dok. sz.
2530033
Változat
04-03/24
Nyelv
Méret
0,4 MB
Varnostne informacije o zapahu
Dok. sz.
2530033
Változat
04-03/24
Nyelv
Méret
0,5 MB
Bezpečnostná informácia pre závory
Dok. sz.
2530033
Változat
04-03/24
Nyelv
Méret
0,5 MB
Sürgüler için güvenlik bilgisi
Dok. sz.
2530033
Változat
04-03/24
Nyelv
Méret
0,5 MB
Informații de siguranță privind zăvoarele
Dok. sz.
2530033
Változat
04-03/24
Nyelv
Méret
0,5 MB
Egyéb dokumentumok
Sales documents
Safety Switches with Metal Housing
Dok. sz.
Változat
Nyelv
Méret
Safety Switches with Metal Housing
Dok. sz.
100369
Változat
11-03/18
Nyelv
Méret
7,8 MB
Interrupteurs de sécurité avec boîtier métallique
Dok. sz.
100676
Változat
11-03/18
Nyelv
Méret
7,9 MB
Interruptores de seguridad con carcasa metálica
Dok. sz.
104856
Változat
11-03/18
Nyelv
Méret
14,0 MB
Sicherheitsschalter mit Metallgehäuse
Dok. sz.
100319
Változat
11-03/18
Nyelv
Méret
7,9 MB
金属壳体 的安全开关
Dok. sz.
102453
Változat
11-03/18
Nyelv
Méret
8,2 MB
Bezpečnostní spínače s kovovým pouzdrem
Dok. sz.
121650
Változat
11-03/18
Nyelv
Méret
7,8 MB
Safety Switches with Plastic Housing
Dok. sz.
Változat
Nyelv
Méret
Safety Switches with Plastic Housing
Dok. sz.
096956
Változat
11-03/18
Nyelv
Méret
6,5 MB
Interrupteurs de sécurité avec boîtier plastique
Dok. sz.
100677
Változat
11-03/18
Nyelv
Méret
6,6 MB
Interruptores de seguridad con carcasa plástica
Dok. sz.
104855
Változat
11-03/18
Nyelv
Méret
6,6 MB
Sicherheitsschalter mit Kunststoffgehäuse
Dok. sz.
096955
Változat
11-03/18
Nyelv
Méret
6,6 MB
塑料壳体 的安全开关
Dok. sz.
116243
Változat
11-03/18
Nyelv
Méret
6,1 MB
Bezpečnostní spínače s plastovým pouzdrem
Dok. sz.
121649
Változat
11-03/18
Nyelv
Méret
6,5 MB
Rendelési adatok
| Rend. sz. | 098121 |
| Cikk neve | RIEGEL STP-GFK |
| Súly | 0,3kg |
| Vámtarifaszám | 39269097900 |


