ZSM2300-165772 (Obj. č. 165772)
Zvolte obsah
ZSM, tlačítka + a –, 12pól. konektor
- 3stupňová funkce
- Tlačítka + a –
- Konektor
- Spirálový připojovací kabel, 5 m

Popis
3stupňová funkce
Potvrzovací funkce je aktivní jen na druhém stupni (středová poloha, tlakový bod). Uvolněním nebo stisknutím za tlakový bod (panická funkce) se potvrzovací funkce zruší (v závislosti na zapojení, viz průběh funkcí).
Tlačítka + a –
Těmto tlačítkům lze individuálně přiřazovat různé funkce, například pojezd osami v kladném nebo záporném směru.
Kabel
Kvalitní připojovací kabely jsou k dispozici ve spirálovém provedení.




Rozměrové výkresy

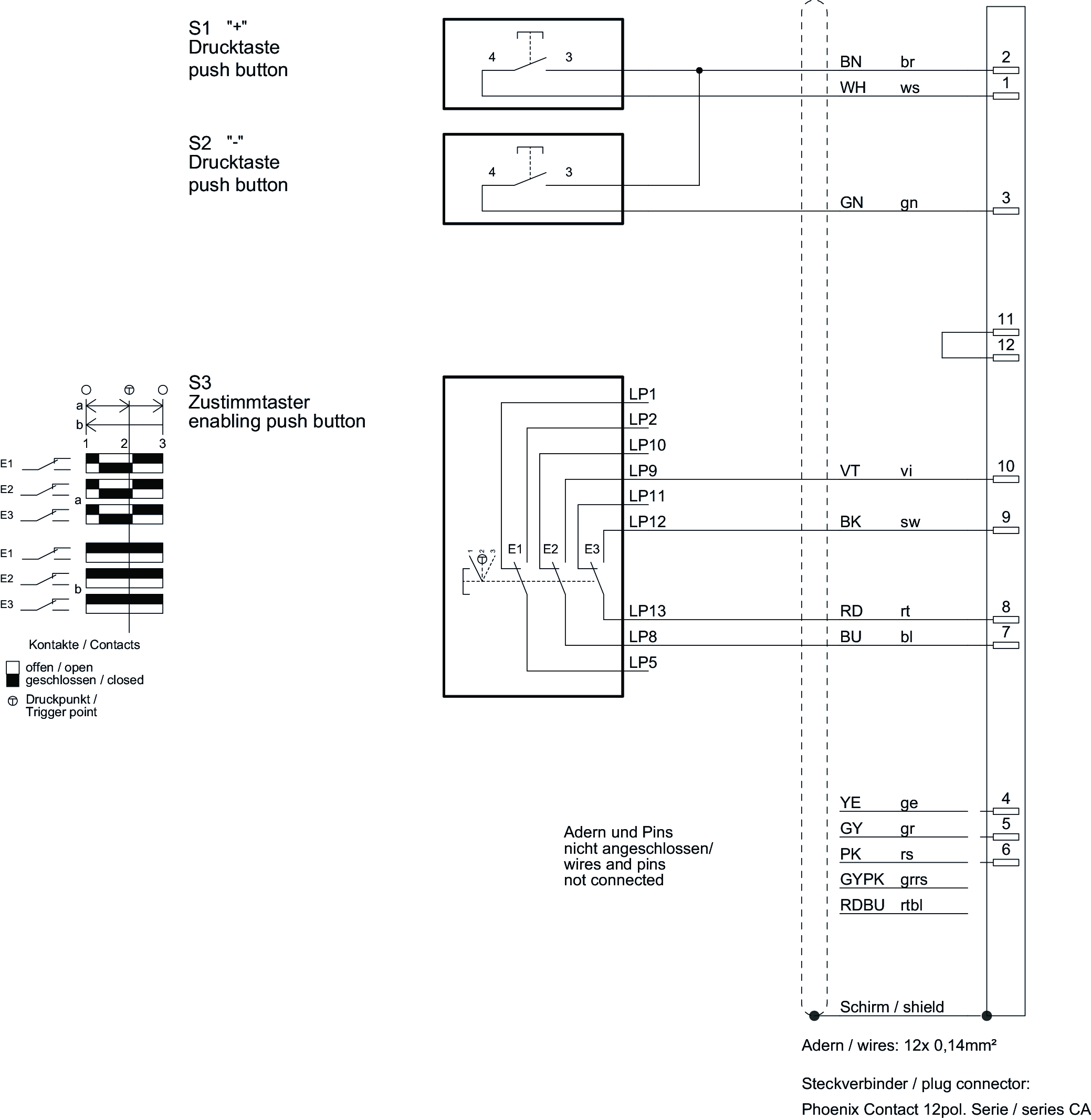
Příklady připojení

Příklady připojení

Příklady připojení

Technické údaje
Schválení


Ovládací a zobrazovací prvky
| Poloha | Barva | Doplňky | Vkládací štítek | Spínací jednotka | Vkládací štítek | Provedení | Počet | Označení1 | LED |
|---|---|---|---|---|---|---|---|---|---|
| Tlačítko + | 1 | ||||||||
| Tlačítko – | 1 |
Hodnoty elektrického připojení
| Zajištění | max. 2 A gG |
| Připojovací kabel | 12× 0,14 mm² (Stíněný) |
| Podmíněný návrhový zkratový proud | 100 A |
| Návrhové izolační napětí Ui | 50 V |
| Jmenovité impulzní napětí Uimp | 0.5 kV |
| Kategorie použití | |
| DC-13 | 24 V, 0,3 A (Pro dodatečné ovládací prvky) |
| DC-13 | 30 V, 0,1 A (Pro potvrzovací tlačítko, varování: Při indukční zátěži musejí být výstupy chráněny nulovou diodou) |
| Spínací charakteristika | 3stupňové potvrzovací tlačítko |
| Stupeň znečištění (externí, podle EN 60947-1) | 3 |
Mechanické hodnoty a prostředí
| Typ připojení | Konektor, počet pólů: 12 |
| Počet přepínacích kontaktů | 3 (Propojení podle blokového schématu zapojení) |
| Teplota při skladování | -25 ... 70 °C |
| Délka kabelu | |
| Spirálový | 5 m |
| Mechanická životnost | 1 x 10⁶ |
| Princip přepínání | Mžikový spínač |
| Třída ochrany | IP54 |
| Okolní teplota | -5 ... 60 °C |
| Materiál | PA, CR, TPE (Nízký obsah PAU) |
Charakteristické hodnoty podle EN ISO 13849-1 a EN IEC 62061
| B10D | Doba provozu | |
|---|---|---|
| Potvrzovací tlačítko | 0.1x106 | 20 y |
Různé
| Splněné normy | 60947-5-8 |
Příslušenství
Ke stažení
Celé balení
Stáhněte si všechny důležité dokumenty jedním kliknutím.
Obsahuje:
- Návod k použití a příp. dodatky k návodu k použití nebo stručné návody
- Příp. datové listy jako dodatek k návodu k použití
- Prohlášení o shodě
Stáhnout kompletní balíček (ZIP, 1,8 MB)
Jednotlivé dokumenty
Pokyny
Operating Instructions Enabling Switch ZSM
Č. dok.
Verze
Jazyk
Velikost
Operating Instructions Enabling Switch ZSM
Č. dok.
2098540
Verze
08-03/26
Jazyk
Velikost
0,5 MB
Mode d’emploi Commande d’assentiment ZSM
Č. dok.
2098540
Verze
08-03/26
Jazyk
Velikost
0,5 MB
Manual de instrucciones Pulsador de validación ZSM
Č. dok.
2098540
Verze
08-03/26
Jazyk
Velikost
0,5 MB
Betriebsanleitung Zustimmtaster ZSM
Č. dok.
2098540
Verze
08-03/26
Jazyk
Velikost
0,5 MB
Manual de instruções Chaves enable ZSM
Č. dok.
2098540
Verze
08-03/26
Jazyk
Velikost
0,5 MB
Istruzioni di impiego Pulsanti di consenso ZSM
Č. dok.
2098540
Verze
08-03/26
Jazyk
Velikost
0,5 MB
Prohlášení o shodě
EU-Konformitätserklärung
Č. dok.
Verze
Jazyk
Velikost
EU-Konformitätserklärung
Č. dok.
EDC2109392
Verze
Jazyk
Velikost
0,2 MB
UKCA-Konformitätserklärung
Č. dok.
Verze
Jazyk
Velikost
UKCA-Konformitätserklärung
Č. dok.
EDC20001579
Verze
Jazyk
Velikost
0,1 MB
Ostatní dokumenty
Schválení a certifikáty
DGUV
Č. dok.
Verze
Jazyk
Velikost
DGUV
Č. dok.
Verze
Jazyk
Velikost
3,2 MB
WEEE
Č. dok.
Verze
Jazyk
Velikost
WEEE
Č. dok.
ECO20001806
Verze
Jazyk
Velikost
0,1 MB
c UL us
Č. dok.
Verze
Jazyk
Velikost
c UL us
Č. dok.
Verze
Jazyk
Velikost
0,2 MB
Objednací údaje
| Obj. č. | 165772 |
| Název výrobku | ZSM2300-165772 |
| Hmotnost brutto | 0,96kg |
| Číslo celního tarifu | 85371098 |
| ECLASS | 27-37-12-38 Agreement switch |



