MGB-L1HEB-PNA-R-158416 (Nº de pedido 158416)
Conjunto de bloqueio MGB-L1...-PN (bloqueio por força de mola) com 2 elementos de comando, conector de 7/8” e M12
- Bloqueio com monitoração de bloqueio
- Parada de emergência conforme ISO 13850 iluminada
- 2 Botões de pressão iluminados
- Inclusive as placas adesivas
- Conexão por meio do conector de 7/8" e M12
- Pré-montado sobre as placas de montagem
- Switch RT Profinet integrado
- Com destravamento de fuga
- Unicode

Descrição
Conexão Profinet
Conector de 7/8” conforme ANSI/B93.55M-1981 e conector M12 (codificado em d) conforme IEC 61076-2-101
Switch Switch RT
Estrutura de rede em forma de linha devido ao RT-Switch integrado.
Utilização flexível como travamento ou bloqueio
Através da respectiva avaliação dos dados seguros do dispositivo pelo comando, a utilização pode ser realizada opcionalmente como travamento ou bloqueio (com ou sem monitoração).
Parada de emergência iluminada
Parada de emergência com uma iluminação que pode ser livremente ativada.
Destravamento de fuga
O destravamento de fuga permite às pessoas inadvertidamente presas a abertura da porta bloqueada a partir da área de perigo.
Placas adesivas
Os dispositivos com as placas adesivas possuem reentrâncias pré-fabricadas para a colagem das placas adesivas anexas (medida padrão 12,5 x 27 mm).







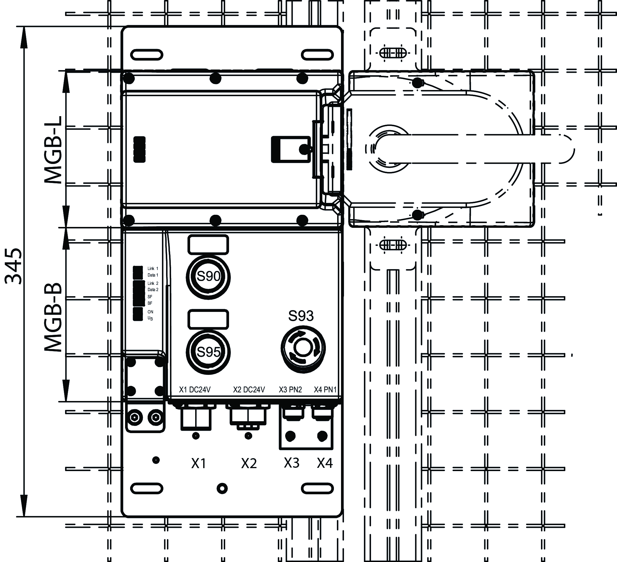
Desenhos dimensionais

Dados técnicos
Aprovações



Destravamento de fuga MGB-E-A-100465 (Nº de encomenda 100465)
Valores mecânicos e ambiente
| Posição de montagem | qualquer |
| Temperatura de armazenamento | -30 ... 70 °C |
| Vida mecânica | 1 x 10⁶ |
| Temperatura ambiente | -30 ... 55 °C |
| Material | |
| Caixa | Fundição sob pressão de zinco / aço inoxidável revestido a pó |
Diversos
| Número de versão do produto | V2.0.0 |
AY-ERS-250-106761 (Nº de encomenda 106761)
Valores mecânicos e ambiente
| Dimensões | 250 mm |
| Temperatura de armazenamento | -25 ... 70 °C |
| Material | USt 37-1K ou similar. |
Módulos da maçaneta MGB-H-AA1A2-R-106049 (Nº de encomenda 106049)
Valores mecânicos e ambiente
| Posição de montagem | Batente da porta DIN direito |
| Temperatura de armazenamento | -25 ... 70 °C |
| Classe de proteção | IP65 |
| Temperatura ambiente | -20 ... 55 °C |
| Material | |
| Caixa | Plástico reforçado com fibra de vidro, fundição de zinco, niquelado, aço inoxidável |
Diversos
| Número de versão do produto | V3.0.0 |
| Recurso adicional | Com placa de montagem |
Módulos de bloqueio MGB-L1B-PNA-R-121857 (Nº de encomenda 121857)
Espaço de trabalho
| Distância segura de desligamento sar | |
| Somente para porta deslizante | 20 mm (Válido somente para uso em portas corrediças com monitoramento de bloqueio desativado) |
Elementos de operação e exibição
| Diagrama de ocupação | |
| B1 | |
| L0 |
| Posição | Cor | Extras | Plaqueta de inserção | Versão | Elemento de comutação | Placa de inserção | Quantidade | Designação 1 | LED |
|---|---|---|---|---|---|---|---|---|---|
| 90 | Botão iluminado | 1N/A | |||||||
| 93 | Parada de emergência iluminada | 2 contatos de abertura forçada | |||||||
| 95 | Botão iluminado | 1N/A |
Valores de conexão elétrica
| Cabo de conexão observação (interno) | |
| Ethernet | Cabo I/O PROFINET, no mín. cat. 5e |
| Tensão nominal de isolamento Ui | 75 V |
| Tensão nominal de impulso Uimp | 0.5 kV |
| Requisitos de proteção CEM | conforme EN 61000-4 e EN 61326-3-1 |
| Corrente de alimentação máxima no bloco de terminais | |
| X1, X2 | max. 4000 mA |
| Classe de proteção | III |
| Consumo de corrente | max. 500 mA |
| Codificação do transponder | Unicode |
| Grau de contaminação (externo, conforme EN 60947-1) | 3 |
| Alimentação de tensão X1 | |
| Hedging | |
| externo | min. 1 A lento |
| Tensão de operação CC | |
| L1 | 24 V DC -15% ... +10% ((protegido contra polaridade reversa, regulado, ondulação restante<5%, PELV)) |
| Tensão auxiliar CC | |
| L2 | 24 V DC -15% ... +10% (A tensão auxiliar não é necessária para o sistema MGB) |
| Alimentação de tensão X2 | |
| Tensão de operação CC | |
| L1 | 24 V DC -15% ... +10% (Para o looping dos seguintes dispositivos) |
| Tensão auxiliar CC | |
| L2 | 24 V DC -15% ... +10% (Para o looping dos seguintes dispositivos) |
Valores mecânicos e ambiente
| Tipo de conexão | |
| 7/8" Power (X2 (o documento PROFINET "Cabling and Interconnection Technology" do PNO auxilia a escolha correta dos cabos)) | |
| Conforme IEC 61076-2-101, cabo I/O Profinet, cat. mín. 5e | M12 D-coded, blindado (X3 (o documento PROFINET "Cabling and Interconnection Technology" do PNO auxilia a escolha correta dos cabos)) |
| 7/8" Power (X1 (o documento PROFINET "Cabling and Interconnection Technology" do PNO auxilia a escolha correta dos cabos)) | |
| Conforme IEC 61076-2-101, cabo I/O Profinet, cat. mín. 5e | M12 D-coded, blindado (X4 (o documento PROFINET "Cabling and Interconnection Technology" do PNO auxilia a escolha correta dos cabos)) |
| Posição de montagem | Batente da porta DIN direito |
| Frequência de comutação | 0.25 Hz |
| Temperatura de armazenamento | -25 ... 70 °C |
| Vida mecânica | |
| No caso de utilização como batente da porta e 1 Joule de energia de impacto | 0.1 x 10⁶ |
| 1 x 10⁶ | |
| Tempo de resposta | |
| Parada de emergência / parada da máquina | max. 250 ms Tempo de desativação (O tempo de resposta é o tempo máximo entre a alteração de um estado de entrada e a exclusão dos respectivos bits no protocolo de barramento.) |
| Posição do trinco | max. 550 ms Tempo de desativação (O tempo de resposta é o tempo máximo entre a alteração de um estado de entrada e a exclusão dos respectivos bits no protocolo de barramento.) |
| Bloqueio | max. 550 ms Tempo de desativação (O tempo de resposta é o tempo máximo entre a alteração de um estado de entrada e a exclusão dos respectivos bits no protocolo de barramento.) |
| Posição da porta | max. 550 ms Tempo de desativação (O tempo de resposta é o tempo máximo entre a alteração de um estado de entrada e a exclusão dos respectivos bits no protocolo de barramento.) |
| Resistência ao choque e a oscilação | de acordo com EN IEC 60947-5-3 |
| Classe de proteção | IP54 |
| Temperatura ambiente | |
| com UB = 24V CC | -20 ... 55 °C |
| Material | |
| Caixa | Plástico reforçado com fibra de vidro, fundição sob pressão de zinco, niquelado, aço inoxidável |
| Força de bloqueio FZh | 2000 N |
| Princípio de bloqueio | Princípio da corrente de repouso |
Valores característicos de acordo com EN ISO 13849-1 e EN IEC 62061
| PL | SIL máximo | PFHD | Categoria | Duração de uso | |
|---|---|---|---|---|---|
| Ativação do bloqueio | PL e | - | 3.91x10-8 | 4 | 20 y |
| Monitorar a posição do dispositivo de proteção | PL e | 3 | 4.07x10-8 | 4 | 20 y |
| Monitoração do bloqueio | PL e | 3 | 4.07x10-8 | 4 | 20 y |
| Análise de sinais de segurança | PL e | 3 | 4.1x10-8 | 4 | 20 y |
| Válido para todas as funções de segurança incluídas adicionalmente, como parada de emergência, chave enable, etc. | |||||
| B10D | Duração de uso | |
|---|---|---|
| Parada de emergência | 0.13x106 | 20 y |
Diversos
| Placa de inserção | |||||||
| |||||||
| Número de versão do produto | V3.30.10 | ||||||
| Recurso adicional | incl. Conjunto de painéis nº de identificação 120344 | ||||||
Interface
| Protocolo de dados do barramento | Profinet (IEC 61158 type 10) |
| Protocolo de dados de segurança | Profisafe (IEC 61784-3-3) |
| Interface de dados | Ethernet |
Componentes

MGB-E-A-100465
Destravamento de fuga MGB-E-A…
- Destravamento de fuga a partir da área de perigo
- Maçaneta da porta em vermelho sinal
- Projetado para perfis de porta até 40 mm
- Eixo de acionamento prolongado para portas mais espessas (pode ser adquirido opcionalmente)

AY-ERS-250-106761
Eixo de acionamento prolongado para MGB-E...
MGB-H-AA1A2-R-106049
Módulo da maçaneta MGB-H...
- Lingueta do trinco inteligente
- Adaptador de bloqueio
- Maçaneta da porta
- Placa de montagem
MGB-L1B-PNA-R-121857
Módulo de avaliação e módulo de barramento MGB-L1...-PN... (bloqueio por força de mola) com 3 elementos de comando, conector de 7/8" e M12
- Bloqueio com monitoração de bloqueio
- Parada de emergência conforme ISO 13850 iluminada
- 2 Botões de pressão iluminados
- Inclusive as placas adesivas
- Conexão por meio do conector de 7/8" e M12
- Pré-montado sobre as placas de montagem
- Switch RT Profinet integrado
- Unicode
Acessórios
Downloads
Pacote completo
Efetuar o download de todos os documentos importantes com um clique
Contém
- O manual de instruções e, eventualmente, o seu complemento ou as breves instruções
- Eventualmente as fichas técnicas como complemento do manual de instruções
- A declaração de conformidade
Documentos isolados
Outros documentos
Dados de encomenda
| Nº de pedido | 158416 |
| Designação do artigo | MGB-L1HEB-PNA-R-158416 |
| Peso bruto | 6,73kg |
| Número da tarifa alfandegária | 85371098 |
| ECLASS | 27-27-24-05 Safety-related transponder switch with guardlocking |

















