MGBS-P-L1-AP-U-R-AZE-SAA-176258 (Nº de pedido 176258)
MGBS-AP, 2 x M12, parada de emergência, 2 botões de pressão, dobradiça direita da porta
- Módulo de bloqueio (encomendar o módulo da maçaneta separadamente)
- Batente da porta comutável, ajuste de fábrica: à direita
- Controle de curto-circuito transversal
- 2 saídas de segurança (saídas dos semicondutores)
- Até a categoria 4 / PL e conforme EN ISO 13849-1
- Parada de emergência
- 2 Botões de pressão (iluminados)
- Com 2 conectores de plugue M12, 8 pinos
- Unicode
- Saída de monitoração de posição da porta

Descrição
Batente da porta
O batente da porta é comutável.
Avaliação Unicode
Cada módulo da maçaneta é altamente codificado (Unicode) O módulo de bloqueio identifica somente os módulos da maçaneta programados. Podem ser programados outros módulos da maçaneta. È identificado sempre apenas o último módulo da maçaneta programado.
Tipo de bloqueio
MGBS-L1 | Bloqueio acionado por força de mola e destravado pela energia LIGA (princípio da corrente de circuito fechado) |
Conjunto de painéis coloridos
A cor do botão de pressão pode ser selecionado por meio do conjunto de painéis coloridos (5 cores) anexo.
Diagrama dos contatos do conector


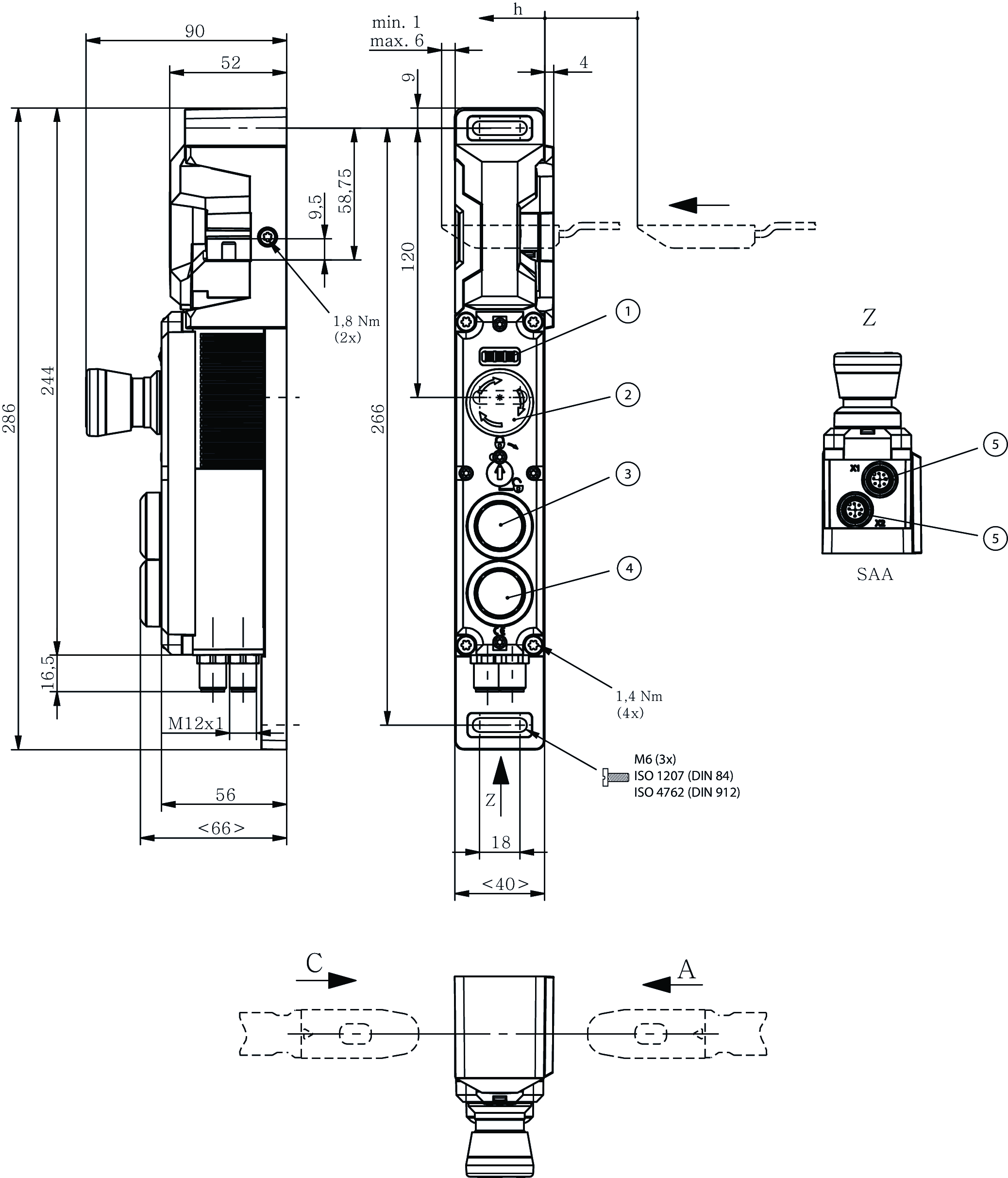
Desenhos dimensionais

| 1 | LEDs |
| 2 | PARADA DE EMERGÊNCIA |
| 3 | Botão de pressão 2 |
| 4 | Botão de pressão 3 |
| 5 | Conector M12 de 8 pinos / plugue alinhado |
Exemplos de conexão

Dados técnicos
Aprovações


Espaço de trabalho
| Precisão de repetição R | 10 % |
Elementos de operação e exibição
| Posição | Cor | Extras | Plaqueta de inserção | Placa de inserção | Versão | Elemento de comutação | Quantidade | Designação 1 | LED |
|---|---|---|---|---|---|---|---|---|---|
| 1 | Parada de emergência | 2 contatos de abertura forçada | |||||||
| 2 | Botão iluminado | 1N/A | |||||||
| 3 | Botão iluminado | 1N/A |
Valores de conexão elétrica
| Hedging | |
| externo (tensão de serviço do solenóide IMP) | 0.5 ... 8 A |
| externo (tensão de serviço UB) | 0.25 ... 8 A |
| Cabo de conexão | 6 W |
| Tensão nominal de isolamento Ui | 50 V |
| Tensão nominal de impulso Uimp | 0.5 kV |
| Tensão de operação CC | |
| UUB | 24 V DC -15% ... +15% protegido contra polaridade reversa, regulado, ondulação restante<5%, PELV |
| Requisitos de proteção CEM | de acordo com EN IEC 60947-5-3 |
| Categoria de uso | |
| DC-13 | 24 V 150mA (Cuidado: As saídas devem ser protegidas com um diodo de roda livre no caso de cargas indutivas) |
| Tensão operacional do solenóide CC | |
| UIMP | 24 V DC -15% ... +10% protegido contra polaridade reversa, regulado, ondulação restante<5%, PELV |
| Duração de ligação do solenóide ED | 100 % |
| Carga de comutação | |
| Conforme UL | 24 V CC, Class 2 (Consultar a alternativa no manual de operação) |
| Classe de proteção | III |
| Consumo de corrente | |
| IUB | 40 mA |
| IIMP | 400 mA |
| Duração do pulso de teste | max. 0.3 ms (Válido para uma carga com C<= 30nF e R<= 20 kohms) |
| Intervalo do impulso de teste | min. 100 ms |
| Grau de contaminação (externo, conforme EN 60947-1) | 3 |
| Elementos de comando e indicação | |
| Tensão operacional | UB V |
| Corrente operacional | 1 ... 50 mA |
| Alimentação de tensão | |
| LED | 24 V |
| Consumo de corrente | |
| LED | 10 mA |
| Parada de emergência | |
| Capacidade de comutação | max. 0.25 W |
| Tensão de comutação | 5 ... 24 V |
| Corrente de comutação | 1 ... 100 mA |
| Saída de monitoração OD, OL | |
| Tipo de saída | comutando em p, seguro contra curto-circuito |
| Tensão de saída | 0.8xUB ... UB V DC |
| Corrente de comutação | 1 ... 50 mA |
| Saídas de segurança FO1A / FO1B | |
| Tipo de saída | 2 Saídas de semicondutor, comutando em p, protegidas contra curto-circuito |
| Tensão de saída | |
| LOW U(FO1A) / U(FO1B) | 0 ... 1 V DC |
| HIGH U(FO1A) / U(FO1B) | UB-1.5 ... UB V DC |
| Tempo de discrepância | |
| Ambas as saídas de segurança | max. 10 ms de acordo com EN IEC 60947-5-3 |
| Tempo de ligação | max. 400 ms |
| Corrente residual Ir | max. 0.25 mA |
| Corrente de comutação | |
| Por saída de segurança FO1A / FO1B | 1 ... 150 mA |
Valores mecânicos e ambiente
| Anfahrgeschwindigkeit | max. 20 m/min |
| Tipo de conexão | 2 conectores de plugue M12, 8 pinos |
| Força de extração | 20 N |
| Retardo de prontidão | max. 1 s |
| Força de acionamento | 10 N |
| Posição de montagem | Batente da porta DIN direito |
| Frequência de comutação | max. 0.5 Hz |
| Temperatura de armazenamento | -25 ... 70 °C |
| Vida mecânica | 1 x 10⁶ |
| Funcionamento posterior | 5 mm |
| Força de retenção | 20 N |
| Resistência ao choque e a oscilação | de acordo com EN IEC 60947-5-3 |
| Classe de proteção | IP65 (Em estado encaixado e travado) |
| Temperatura ambiente | |
| com UB = 24V CC | -20 ... 55 °C |
| Material | |
| Capa na cabeça da chave | Fundição sob pressão de zinco |
| Alojamento da chave | Fundição sob pressão de zinco |
| Carcaça da chave de segurança | Termoplástico reforçado por fibra de vidro |
| Força de bloqueio Fmax | 3900 N |
| Força de bloqueio FZh | 3000 N (Fzh = Fmax/1,3 dependendo do atuador utilizado) |
| Princípio de bloqueio | Princípio da corrente de repouso |
Valores característicos de acordo com EN ISO 13849-1 e EN IEC 62061
| PL | SIL máximo | PFHD | Categoria | Duração de uso | |
|---|---|---|---|---|---|
| Monitoração do bloqueio | PL e | - | 4.1x10-9 | 4 | 20 y |
| B10D | Duração de uso | |
|---|---|---|
| Parada de emergência | 0.13x106 | 20 y |
| PL | SIL máximo | Categoria | Duração de uso | |
|---|---|---|---|---|
| Ativação do bloqueio | Dependendo da ativação externa do bloqueio | 20 y | ||
Diversos
| Notas para aprovação UL | Operação somente com a alimentação de tensão UL-Class 2 ou medidas similares, consultar o manual de operação |
| Recurso adicional | incl. Conjunto de painéis nº de identificação 120344 |
Downloads
Pacote completo
Efetuar o download de todos os documentos importantes com um clique
Contém
- O manual de instruções e, eventualmente, o seu complemento ou as breves instruções
- Eventualmente as fichas técnicas como complemento do manual de instruções
- A declaração de conformidade
Documentos isolados
Outros documentos
Dados de encomenda
| Nº de pedido | 176258 |
| Designação do artigo | MGBS-P-L1-AP-U-R-AZE-SAA-176258 |
| Peso bruto | 2,1kg |
| Número da tarifa alfandegária | 85371098 |
| ECLASS | 27-27-24-05 Safety-related transponder switch with guardlocking |
