BTC-NZVZ-S-TH-01-F (Nº de pedido 104399)
Trinco com destravamento de fuga para chaves de segurança NZ.VZ e NZ.VZ.VS
- Trinco para chaves de segurança NZ.VZ e NZ.VZ.VS
- Trinco de fundição sob pressão de alumínio
- Para portas com batente à esquerda ou à direita
- Trinco com alavanca de emergência
- Botão de engate na posição aberta
- Adequado para uma folga de porta de aprox. 15 mm

Descrição
Escopo de fornecimento
- Peças do trinco
- Atuador
Encomendar separadamente:
- Chave de segurança
Engate em posição aberta
O engate na posição aberta deve impedir que pessoas possam ficar trancadas na parte interna de uma máquina.
Destravamento de fuga
Trincos com destravamento de fuga possuem uma alavanca de emergência que possibilita abrir o trinco pelo interior de um dispositivo de proteção.
Tipos de porta e batente de porta
Adequado para portas giratórias e corrediças Adequado para portas com batente à esquerda e à direita Com batente de porta, a porta não pode ser aberta para dentro e para fora.
Adaptador de bloqueio integrado
Com auxílio do adaptador de bloqueio integrado, o trinco pode ser travado na posição aberta e protegido com cadeados, por exemplo. É possível evitar que pessoas fiquem trancadas acidentalmente na área de perigo.

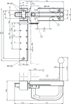
Desenhos dimensionais

| 1 | Nota: Devido à construção simétrica, o trinco pode ser utilizado nas portas com batente à direita e à esquerda. |
| 2 | O trinco engata na posição aberta e impede um fecho involuntário do trinco. Destravado por meio de compressão do botão. |
| 3 | Curso de abertura |
| 4 | Moldura de grade de proteção (40x40) |
| 5 | Para porta com batente à direita |
Dados técnicos
Valores mecânicos e ambiente
| Sentido de aproximação | A ou C |
| Quantidade de chaves de segurança que podem ser montadas | 1 |
| Destravamento de fuga | sim |
| Temperatura de armazenamento | -25 ... 70 °C |
| Material | |
| Alojamento da chave | Alumínio |
| Barras de guia | Alumínio |
| Placa base | Alumínio |
| Maçaneta | Alumínio |
Diversos
| Engate na posição aberta | Engate do pino |
Downloads
Pacote completo
Efetuar o download de todos os documentos importantes com um clique
Contém
- O manual de instruções e, eventualmente, o seu complemento ou as breves instruções
- Eventualmente as fichas técnicas como complemento do manual de instruções
- A declaração de conformidade
Documentos isolados
Information de sécurité pour verrous-targettes
Información de seguridad para cerrojos
Sicherheitsinformation für Riegel
Outros documentos
CAD/eCAD
Dados de encomenda
| Nº de pedido | 104399 |
| Designação do artigo | BTC-NZVZ-S-TH-01-F |
| Peso bruto | 1,373kg |
| Número da tarifa alfandegária | 83014090000 |

