MGB-B-A1W2A2-PN-123759 (주문 번호 123759)
콘텐츠 선택
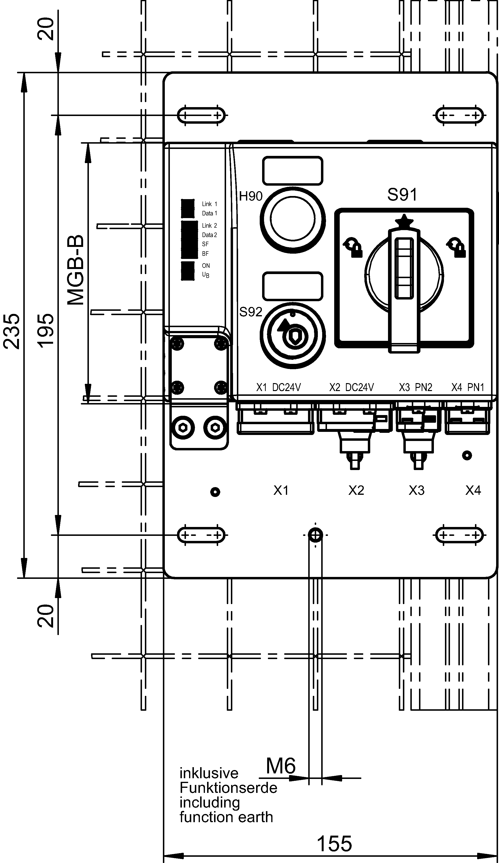
버스 모듈 MGB-B...-PN..., 제어장치 및 인디케이터 3개 장착, 푸시-풀 플러그
- 신호 인디케이터 1개
- 작동 모드 선택기 1개
- 발광 푸시버튼 1개
- 접착 라벨 포함
- 푸시-풀 플러그
- 마운팅 플레이트에 사전 조립됨
- PROFINET RT 스위치 내장

설명
PROFINET 연결
IEC 61076-3-117에 따른 푸시-풀 플러그를 통한 연결
PROFINET RT 스위치
내장형 RT 스위치에 의한 점대점 기술 네트워크 구조







치수 도면

기술 자료
승인


작동 및 디스플레이 요소
| 점유 다이어그램 | B4 |
| 위치 | 색 | 기타 | 버전 | 스위칭 부재 | 슬라이드인 라벨 | 비고 슬라이드인 라벨 | 번호 | Designation1 | LED |
|---|---|---|---|---|---|---|---|---|---|
| 90 | 빨간색 | 신호 인디케이터 | |||||||
| 91 | 작동 모드 선택기 | 3의 2 코드 | mit Symbolen | ||||||
| 92 | 백색 | 인쇄형 | 발광 푸시버튼 | NO 1개 |
전기 연결 값
| 연결 케이블 | |
| Ethernet | 프로피넷 I/O 케이블, 최소한 범주 5e |
| 정격 절연 전압 Ui | 75 V |
| 정격 임펄스 전압 Uimp | 0.5 kV |
| EMC 방호 요건 | EN 61000-4 및 EN 61326-3-1에 의거 |
| 연결 블록으로 공급되는 최대 공급 전류 | |
| X1, X2 | max. 4000 mA |
| 안전 등급 | III |
| 전류 소비 | max. 500 mA |
| 오염 등급(외부, EN 60947-1에 의거) | 3 |
| 전원장치 X1 | |
| 헤징 | |
| 외부 | min. 1 A 느린 송풍 |
| 작동 전압 DC | |
| L1 | 24 V DC -15% ... +10% ((역극 방지, 조절형, 잔류 리플<5%, PELV)) |
| 보조 전압 DC | |
| L2 | 24 V DC -15% ... +10% (MGB 시스템에는 보조 전압이 필요하지 않습니다) |
| 전원장치 X2 | |
| 작동 전압 DC | |
| L1 | 24 V DC -15% ... +10% (연결된 장치의 완전한 순환 고리 형성용) |
| 보조 전압 DC | |
| L2 | 24 V DC -15% ... +10% (연결된 장치의 완전한 순환 고리 형성용) |
기계적 가치 및 환경
| 연결 유형 | |
| 푸시-풀 전원 (X1(올바른 케이블 선택에 있어서 PNO 보조 문서에서 나온 PROFINET "배선 및 상호 연결 기술' 문서.)) | |
| 푸시-풀 전원 (X2(올바른 케이블 선택에 있어서 PNO 보조 문서에서 나온 PROFINET "배선 및 상호 연결 기술' 문서.)) | |
| IEC 61076-3-117에 의거, 버전 14, 차폐형, 프로피넷 I/O 케이블, 최소한 범주 5e | 푸시-풀 RJ45 (X4(올바른 케이블 선택에 있어서 PNO 보조 문서에서 나온 PROFINET "배선 및 상호 연결 기술' 문서.)) |
| IEC 61076-3-117에 의거, 버전 14, 차폐형, 프로피넷 I/O 케이블, 최소한 범주 5e | 푸시-풀 RJ45 (X3(올바른 케이블 선택에 있어서 PNO 보조 문서에서 나온 PROFINET "배선 및 상호 연결 기술' 문서.)) |
| 설치 방향 | 임의 |
| 스위칭 주파수 | 0.25 Hz |
| 보관 온도 | -25 ... 70 °C |
| 응답 시간 | |
| 작동 모드 선택기 | max. 220 ms 꺼짐 시간 (반응 시간은 입력부 상태의 변화와 버스 프로토콜에 있는 해당 비트 삭제 사이의 최대 시간입니다.) |
| 내충격성 및 내진동성 | EN IEC 60947-5-3에 의거 |
| 보호 등급 | IP54 |
| 주변 온도 | |
| UB = 24V DC에서 | -20 ... 55 °C |
| 재질 | |
| 하우징 | 섬유유리 강화 플라스틱, 니켈 도금 다이캐스트 아연, 스테인리스 스틸 |
EN ISO 13849-1 및 EN IEC 62061에 따른 특성 값
| 진단 범위(DC) | 99 % |
| PL | 최대 SIL | PFHD | 범주 | 임무 시간 | |
|---|---|---|---|---|---|
| 안전한 작동 모드 선택기 스위치 | PL e | 3 | 4.1x10-8 | 4 | 20 y |
기타
| 슬라이드인 라벨 | ||||||||||
| ||||||||||
인터페이스
| 버스 데이터 프로토콜 | 프로피넷(IEC 61158 타입 10) |
| 안전 데이터 프로토콜 | Profisafe (IEC 61784-3-3) |
| 날짜 인터페이스 | 이더넷 |
부속품
다운로드
컴플리트 패키지
단 한번 클릭하여 중요한 모든 문서 다운로드.
내용물:
- 사용 설명서와 사용 설명서에 대한 보충 사항 또는 요약 설명서
- 사용 설명서를 보완하는 데이터 시트
- 적합성 선언
컴플리트 패키지 다운로드 (ZIP, 2,3 MB)
단일 문서
기타 다른 문서
승인 및 인증서
WEEE
문서 번호
버전
언어
크기
WEEE
문서 번호
ECO20001806
버전
언어
크기
0,1 MB
c UL us
문서 번호
버전
언어
크기
c UL us
문서 번호
버전
언어
크기
0,7 MB
주문 데이터
| 주문 번호 | 123759 |
| 품목 명칭 | MGB-B-A1W2A2-PN-123759 |
| 총중량 | 2,291kg |
| 세관품목분류번호 | 85371098 |
| ECLASS | 27-24-26-07 Field bus, decentralized peripheral - basic device |









