AM-P-126399 (注文番号 126399)
コンテンツを選ぶ
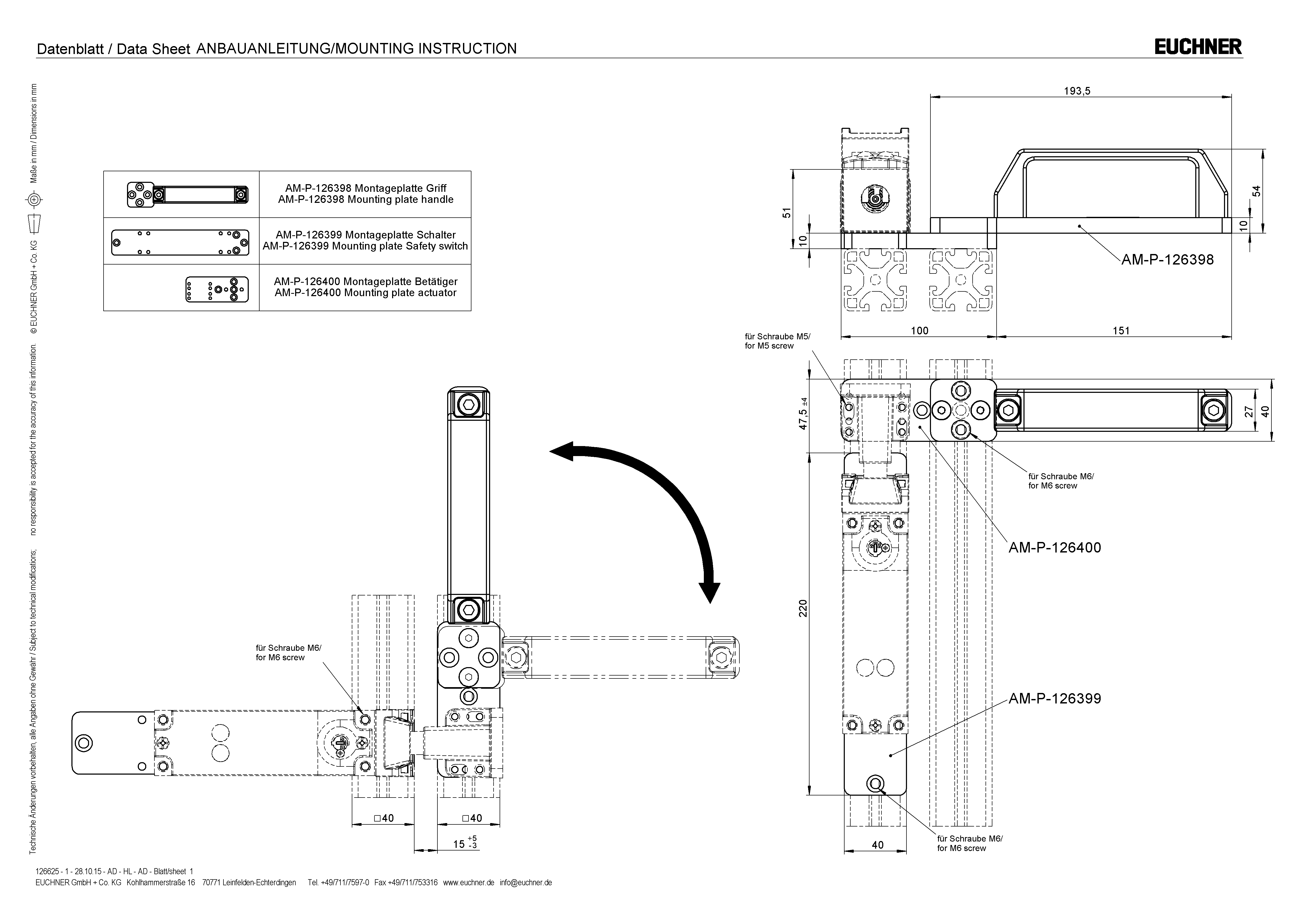
安全スイッチ CET 用取付プレート EM-P スイッチ
- CET 読み込みヘッド/スイッチ用取付プレート
- 幅 30/40/50 mm のアルミニウム・プロファイルに直接取り付け
- 取り付けプレート AM-P-126400 および AM-P-126398 に適合

説明


寸法図

寸法図

| 1 | AM-P-126398 ハンドル付き取付プレート |
| 2 | CET アクチュエーター用 AM-P-126400 取付プレート |
| 3 | CET 読み込みヘッド/スイッチ用 AM-P-126399 取付プレート |
技術データ
機械的価値と環境
| 保管温度 | -25 ... 70 °C |
| 素材 | アルミニウム |
その他
| 互換性 | CET |
ダウンロード
一式
ワンクリックですべての重要文書をダウンロードできます。
コンテンツ:
- 操作説明書、およびその補足文書もしくは簡略説明書
- 操作説明書の補足データシート
- 適合宣言書
一式をダウンロード (ZIP, 0,3 MB)
単一文書
その他の文書
営業資料
発注データ
| 注文番号 | 126399 |
| 品目指定 | AM-P-126399 |
| 総重量 | 0,36kg |
| 関税番号 | 85389099990 |



