BTC-ST/G-S-TH-01-F (N° de commande 106285)
Choisir le contenu
Verrou-targette BTC-ST/G... avec déverrouillage interne pour interrupteurs de sécurité STA, STP, SGP et SGA
- Verrou-targette en aluminium
- Pour portes sur charnières à gauche ou à droite
- Levier de déverrouillage interne
- Bouton-poussoir en position ouverte
- Condamnation possible par cadenas en position ouverte
- Actionneur fourni

Description
Avantages
- Conception robuste
- Montage facile par vis sur profilés aluminium ou protections machine
- Couleur jaune pour reconnaissance aisée
- Aucune poignée de porte supplémentaire nécessaire
Remarques
- Les verrous-targettes ont été conçus pour les séries STA, STP, SGP et SGA
- Interrupteur de sécurité à commander séparément
Particularités
- Verrou-targette avec verrouillage mécanique
- Le verrou-targette est maintenu en position ouverte, empêchant ainsi la fermeture involontaire de celui-ci. Pour déverrouiller, appuyer sur le bouton.

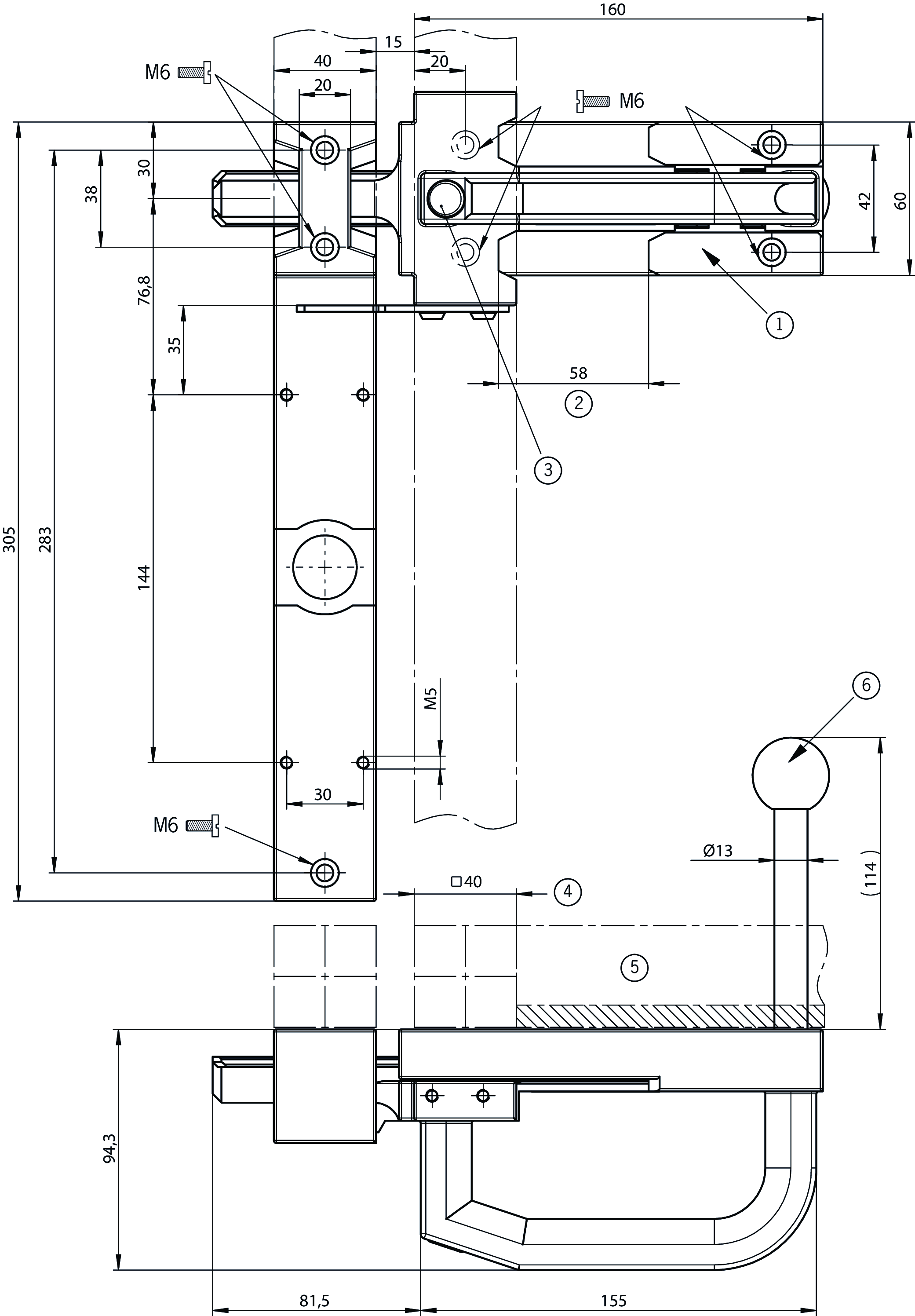
Dessins cotés

| 1 | Remarque : ce verrou-targette peut être utilisé pour les portes avec les charnières à droite ou à gauche en raison de sa conception symétrique. |
| 2 | Ouverture |
| 3 | Le verrou-targette est maintenu en position ouverte, empêchant ainsi la fermeture involontaire de celui-ci. Pour déverrouiller, appuyer sur le bouton. |
| 4 | Cadre de protection (40x40) |
| 5 | Porte sur charnières à droite |
| 6 | Déverrouillage interne |
Caractéristiques techniques
Valeurs mécaniques et environnement
| Direction d’attaque | A ou C |
| Nombre d’interrupteurs de sécurité montables | 1 |
| Déverrouillage interne | oui |
| Température de stockage | -25 ... 70 °C |
| Matériau | |
| Poignée | Aluminium |
| Guides | Aluminium |
| Embase | Aluminium |
| Support de l’interrupteur | Aluminium |
Divers
| Verrouillage position ouverte | Verrouillage |
Téléchargements
Ensemble complet
Télécharger tous les documents importants en un seul clic.
Contient :
- Le mode d’emploi et, le cas échéant, compléments du mode d’emploi ou brèves instructions
- Le cas échéant, fiches techniques en complément du mode d’emploi
- La déclaration de conformité
Télécharger l’ensemble complet (ZIP, 9,1 MB)
Documents individuels
Instructions
Information de sécurité pour verrous-targettes
N° doc.
Version
Langue
Taille
Information de sécurité pour verrous-targettes
Safety Information for Bolts
Información de seguridad para cerrojos
Sicherheitsinformation für Riegel
Safety Information for Bolts
Información de seguridad para cerrojos
Sicherheitsinformation für Riegel
N° doc.
2530033
Version
04-03/24
Langue
Taille
0,2 MB
Sicherheitsinformation für Riegel
N° doc.
2530033
Version
04-03/24
Langue
Taille
0,2 MB
Informação de segurança referente ao trinco
N° doc.
2530033
Version
04-03/24
Langue
Taille
0,4 MB
Informazioni sulla sicurezza per il chiavistello
N° doc.
2530033
Version
04-03/24
Langue
Taille
0,1 MB
Bezpečnostní informace pro petlice
N° doc.
2530033
Version
04-03/24
Langue
Taille
0,5 MB
Tolózár biztonsági információi
N° doc.
2530033
Version
04-03/24
Langue
Taille
0,5 MB
Информация за безопасност за ригели
N° doc.
2530033
Version
04-03/24
Langue
Taille
0,5 MB
Sikkerhedsinformation for bolte
N° doc.
2530033
Version
04-03/24
Langue
Taille
0,4 MB
Ohutusalane teave riivistuste kohta
N° doc.
2530033
Version
04-03/24
Langue
Taille
0,5 MB
Turvallisuustietoja salvalle
N° doc.
2530033
Version
04-03/24
Langue
Taille
0,4 MB
Πληροφορίες ασφαλείας για μάνδαλα
N° doc.
2530033
Version
04-03/24
Langue
Taille
0,5 MB
Sigurnosne informacije za brave
N° doc.
2530033
Version
04-03/24
Langue
Taille
0,5 MB
Aizbīdņu drošības informācija
N° doc.
2530033
Version
04-03/24
Langue
Taille
0,5 MB
Saugos informacija skląsčiui
N° doc.
2530033
Version
04-03/24
Langue
Taille
0,5 MB
Veiligheidsinformatie voor grendels
N° doc.
2530033
Version
04-03/24
Langue
Taille
0,4 MB
Sikkerhetsinformasjon for låser
N° doc.
2530033
Version
04-03/24
Langue
Taille
0,4 MB
Informacje o bezpieczeństwie dotyczące użytkowania zasuw
N° doc.
2530033
Version
04-03/24
Langue
Taille
0,5 MB
Säkerhetsinformation för regeln
N° doc.
2530033
Version
04-03/24
Langue
Taille
0,4 MB
Varnostne informacije o zapahu
N° doc.
2530033
Version
04-03/24
Langue
Taille
0,5 MB
Bezpečnostná informácia pre závory
N° doc.
2530033
Version
04-03/24
Langue
Taille
0,5 MB
Sürgüler için güvenlik bilgisi
N° doc.
2530033
Version
04-03/24
Langue
Taille
0,5 MB
Informații de siguranță privind zăvoarele
N° doc.
2530033
Version
04-03/24
Langue
Taille
0,5 MB
Autres documents
Documents de vente
Interrupteurs de sécurité avec boîtier métallique
N° doc.
Version
Langue
Taille
Interrupteurs de sécurité avec boîtier métallique
N° doc.
100676
Version
11-03/18
Langue
Taille
7,9 MB
Safety Switches with Metal Housing
N° doc.
100369
Version
11-03/18
Langue
Taille
7,8 MB
Interruptores de seguridad con carcasa metálica
N° doc.
104856
Version
11-03/18
Langue
Taille
14,0 MB
Sicherheitsschalter mit Metallgehäuse
N° doc.
100319
Version
11-03/18
Langue
Taille
7,9 MB
金属壳体 的安全开关
N° doc.
102453
Version
11-03/18
Langue
Taille
8,2 MB
Bezpečnostní spínače s kovovým pouzdrem
N° doc.
121650
Version
11-03/18
Langue
Taille
7,8 MB
Interrupteurs de sécurité avec boîtier plastique
N° doc.
Version
Langue
Taille
Interrupteurs de sécurité avec boîtier plastique
N° doc.
100677
Version
11-03/18
Langue
Taille
6,6 MB
Safety Switches with Plastic Housing
N° doc.
096956
Version
11-03/18
Langue
Taille
6,5 MB
Interruptores de seguridad con carcasa plástica
N° doc.
104855
Version
11-03/18
Langue
Taille
6,6 MB
Sicherheitsschalter mit Kunststoffgehäuse
N° doc.
096955
Version
11-03/18
Langue
Taille
6,6 MB
塑料壳体 的安全开关
N° doc.
116243
Version
11-03/18
Langue
Taille
6,1 MB
Bezpečnostní spínače s plastovým pouzdrem
N° doc.
121649
Version
11-03/18
Langue
Taille
6,5 MB
Données de commande
| N° de commande | 106285 |
| Désignation article | BTC-ST/G-S-TH-01-F |
| Poids brut | 1,368kg |
| Code douanier | 83014090000 |

