RIEGEL S-CF (N° de commande 096391)
Verrou-targette avec déverrouillage interne pour interrupteurs de sécurité STA, STP, SGP et SGA
- Verrou-targette pour interrupteurs de sécurité STA, STP, SGP et SGA
- Verrou-targette en acier
- Verrou-targette avec levier de déverrouillage interne
- Pour portes sur charnières à gauche
- Bouton d’arrêt en position ouverte
- Convient pour un jeu de porte d’env. 15 mm

Description
Contenu de la livraison
- Pièces pour verrous-targettes
- Actionneur
À commander séparément :
- Interrupteur de sécurité
Verrouillage en position ouverte
Le verrouillage en position ouverte est destiné à empêcher que des personnes puissent s’enfermer à l’intérieur d’une machine.
Déverrouillage interne
Les verrous-targettes avec déverrouillage interne possèdent un levier de déverrouillage interne permettant d’ouvrir le verrou depuis l’intérieur de la zone protégée par le protecteur.
Types de porte et charnière de porte
Convient pour portes battantes et coulissantes Convient pour portes sur charnières à gauche Avec butée de porte : la porte ne peut pas s’ouvrir vers l’intérieur.
Dispositif de consignation intégré
À l’aide du dispositif de consignation intégré, le verrou-targette peut être verrouillé en position ouverte, par ex. avec des cadenas. Ceci permet d’éviter que des personnes ne se retrouvent enfermées accidentellement dans la zone de danger.

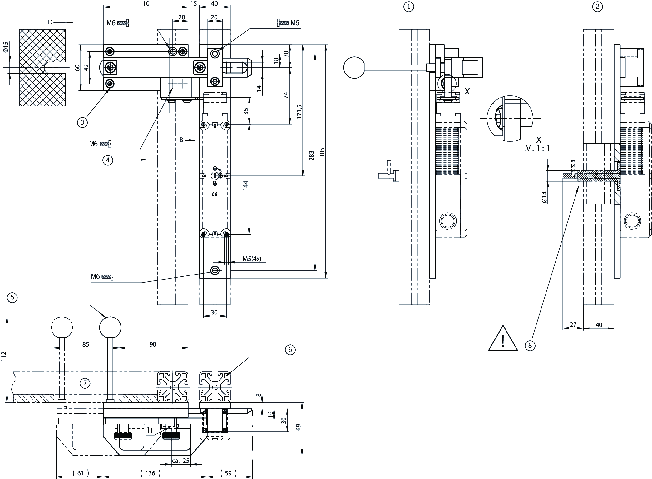
Dessins cotés

| 1 | Vue D |
| 1) | Verrou-targette avec verrouillage mécanique. Est maintenu en position ouverte. (Empêche la fermeture involontaire du verrou-targette) Pour déverrouiller, lever le bouton d’arrêt. |
| 2 | Vue B |
| 3 | Vis de butée freinée |
| 4 | Interrupteurs de sécurité STP, STA, SGP, SGA sens d’attaque C |
| 5 | fourni(e) à part |
| 6 | Cadre de protection (40x40) |
| 7 | Porte sur charnières à gauche |
| 8 | La languette ne doit pas être en état de traction (par ex. portes sous tension mécanique ou traction sur le levier du verrou-targette) lors de l’actionnement du déverrouillage interne de l’interrupteur |
Caractéristiques techniques
Valeurs mécaniques et environnement
| Direction d’attaque | C |
| Nombre d’interrupteurs de sécurité montables | 1 |
| Déverrouillage interne | oui |
| Température de stockage | -25 ... 70 °C |
| Matériau | |
| Poignée | Plastique |
| Embase | Acier galvanisé |
| Guides | Plastique |
| Support de l’interrupteur | Acier peint par poudrage |
Divers
| Verrouillage position ouverte | Verrouillage |
Accessoires
Téléchargements
Ensemble complet
Télécharger tous les documents importants en un seul clic.
Contient :
- Le mode d’emploi et, le cas échéant, compléments du mode d’emploi ou brèves instructions
- Le cas échéant, fiches techniques en complément du mode d’emploi
- La déclaration de conformité
Documents individuels
Safety Information for Bolts
Información de seguridad para cerrojos
Sicherheitsinformation für Riegel
Autres documents
Données de commande
| N° de commande | 096391 |
| Désignation article | RIEGEL S-CF |
| Poids brut | 2,174kg |
| Code douanier | 83014090000 |


