MGB-L1HB-PNC-R-117102 (N.º de pedido 117102)
Elija el contenido
Configuración con bloqueo MGB-L1…-PN… (bloqueo mediante fuerza de resorte) con 4 elementos de mando, conector push-pull
- Bloqueo con monitorización de bloqueo
- Dispositivo de parada de emergencia conforme a ISO 13850 iluminado
- 3 pulsadores iluminados
- Incluye rótulos adhesivos
- Conector push-pull
- Premontados en placas de montaje
- Switch RT Profinet integrado
- Multicode

Descripción
Conexión Profinet
Conexión mediante conector push-pull conforme a IEC 61076-3-117
Switch RT Profinet
Estructura de red con topología punto a punto.
Uso flexible como enclavamiento o bloqueo
Posibilidad de uso como enclavamiento o como bloqueo (con o sin monitorización) gracias a la respectiva evaluación de los datos seguros del dispositivo a través del sistema de control.
Parada de emergencia con iluminación
Parada de emergencia con iluminación de libre activación.







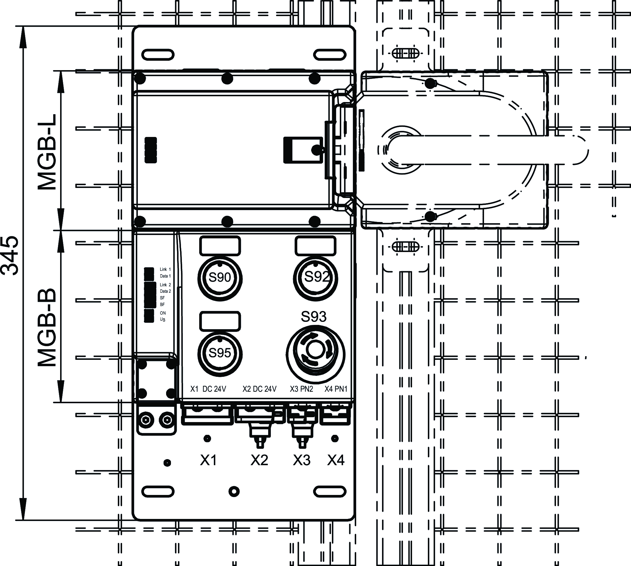
Dibujos acotados

Datos técnicos
Homologaciones



Módulos con manilla MGB-H-AA1A2-R-106049 (N.º de pedido 106049)
Valores mecánicos y entorno
| Posición de montaje | Sujeción de puerta DIN derecha |
| Temperatura de almacenamiento | -25 ... 70 °C |
| Clase de protección | IP65 |
| Temperatura ambiental | -20 ... 55 °C |
| Material | |
| Carcasa | Plástico reforzado con fibra de vidrio, fundición de cinc, niquelado, acero inoxidable |
Varios
| Característica adicional | Con placa de montaje |
Módulos de bloqueo MGB-L1B-PNC-R-117098 (N.º de pedido 117098)
Espacio de trabajo
| Distancia de desconexión asegurada sar | |
| Solo para puerta corredera | 20 mm (Solo para el uso en puertas correderas con monitorización de bloqueo desactivada) |
Elementos de mando y visualización
| Diagrama de ocupación | |
| L0 | |
| B1 |
| Posición | Color | Extras | Observación rótulo insertable | Elemento interruptor | Rótulo insertable | Modelo | Cantidad | Denominación 1 | LED |
|---|---|---|---|---|---|---|---|---|---|
| 90 | Blanco | 1 NO | Pulsadores con iluminación | ||||||
| 92 | azul | 1 NO | Pulsadores con iluminación | ||||||
| 93 | Con anillo adhesivo | 2 contactos de apertura positiva | Parada de emergencia iluminada | ||||||
| 95 | Blanco | 1 NO | Pulsadores con iluminación |
Valores de conexión eléctrica
| Cable de conexión | |
| Ethernet | Cable de E/S Profinet, mín. cat. 5e |
| Tensión de aislamiento de referencia Ui | 75 V |
| Tensión nominal de impulso Uimp | 0.5 kV |
| Normas de protección de compatibilidad electromagnética (CEM) | Según EN 61000-4 y EN 61326-3-1 |
| Corriente de alimentación máxima en el bloque de conexión | |
| X1, X2 | max. 4000 mA |
| Clase de protección | III |
| Consumo de corriente | max. 500 mA |
| Codificación del transponder | Multicode |
| Grado de contaminación (externa, según EN 60947-1) | 3 |
| Alimentación de tensión X1 | |
| Cobertura | |
| Externo | min. 1 A Lento |
| Tensión de servicio CC | |
| L1 | 24 V DC -15% ... +10% ((protegida contra inversiones de polaridad, regulada, ondulación residual<5 %, PELV)) |
| Tensión auxiliar CC | |
| L2 | 24 V DC -15% ... +10% (El sistema MGB no requiere tensión auxiliar.) |
| Alimentación de tensión X2 | |
| Tensión de servicio CC | |
| L1 | 24 V DC -15% ... +10% (Para la inserción en bucle para los siguientes dispositivos) |
| Tensión auxiliar CC | |
| L2 | 24 V DC -15% ... +10% (Para la inserción en bucle para los siguientes dispositivos) |
Valores mecánicos y entorno
| Tipo de conexión | |
| PushPull Power (X2 (El documento PROFINET «Cabling and Interconnection Technology» de la PNO le ayudará a elegir correctamente los cables).) | |
| Según IEC 61076-3-117 variante 14, blindado, cable de E/S Profinet, cat. mín. 5e | PushPull RJ45 (X4 (El documento PROFINET «Cabling and Interconnection Technology» de la PNO le ayudará a elegir correctamente los cables).) |
| PushPull Power (X1 (El documento PROFINET «Cabling and Interconnection Technology» de la PNO le ayudará a elegir correctamente los cables).) | |
| Según IEC 61076-3-117 variante 14, blindado, cable de E/S Profinet, cat. mín. 5e | PushPull RJ45 (X3 (El documento PROFINET «Cabling and Interconnection Technology» de la PNO le ayudará a elegir correctamente los cables).) |
| Posición de montaje | Sujeción de puerta DIN derecha |
| Frecuencia de conmutación | 0.25 Hz |
| Temperatura de almacenamiento | -25 ... 70 °C |
| Vida mecánica | |
| 1 x 10⁶ | |
| Si se utiliza como tope de puerta con una energía de impacto de 1 julio | 0.1 x 10⁶ |
| Tiempo de respuesta | |
| Parada de emergencia/parada de la máquina | max. 250 ms Tiempo de desconexión (El tiempo de reacción es el tiempo máximo transcurrido entre el cambio de un estado de entrada y la eliminación del bit correspondiente en el protocolo de bus.) |
| Posición del cerrojo | max. 550 ms Tiempo de desconexión (El tiempo de reacción es el tiempo máximo transcurrido entre el cambio de un estado de entrada y la eliminación del bit correspondiente en el protocolo de bus.) |
| Posición de la puerta | max. 550 ms Tiempo de desconexión (El tiempo de reacción es el tiempo máximo transcurrido entre el cambio de un estado de entrada y la eliminación del bit correspondiente en el protocolo de bus.) |
| Bloqueo | max. 550 ms Tiempo de desconexión (El tiempo de reacción es el tiempo máximo transcurrido entre el cambio de un estado de entrada y la eliminación del bit correspondiente en el protocolo de bus.) |
| Resistencia al choque y a la vibración | Según EN IEC 60947-5-3 |
| Clase de protección | IP54 |
| Temperatura ambiental | |
| Con UB = 24 V CC | -20 ... 55 °C |
| Material | |
| Carcasa | Plástico reforzado con fibra de vidrio, fundición de cinc, niquelado, acero inoxidable |
| Fuerza de bloqueo FZh | 2000 N |
| Principio de bloqueo | Principio del bloqueo sin tensión |
Valores característicos según EN ISO 13849-1 y EN IEC 62061
| PL | SIL máx. | PFHD | Categoría | Tiempo de servicio | |
|---|---|---|---|---|---|
| Accionamiento del bloqueo | PL e | - | 3.91x10-8 | 4 | 20 y |
| Supervisión de la posición del resguardo | PL e | 3 | 4.07x10-8 | 4 | 20 y |
| Supervisión del bloqueo | PL e | 3 | 4.07x10-8 | 4 | 20 y |
| Evaluación de señales de seguridad | PL e | 3 | 4.1x10-8 | 4 | 20 y |
| Se aplica a todas las funciones de seguridad incluidas adicionalmente, como parada de emergencia, pulsador de validación, etc. | |||||
| B10D | Tiempo de servicio | |
|---|---|---|
| Parada de emergencia | 0.13x106 | 20 y |
Varios
| Rótulo insertable | ||||||||||||||||
| ||||||||||||||||
Interfaz
| Protocolo de datos de bus | Profinet (IEC 61158 type 10) |
| Protocolo de datos de seguridad | Profisafe (IEC 61784-3-3) |
| Interface de datos | Ethernet |
Componentes
106049
MGB-H-AA1A2-R-106049
Módulo con manilla MGB-H…
MGB-H-AA1A2-R-106049
Módulo con manilla MGB-H…
- Pestillo del cerrojo inteligente
- pieza de bloqueo.
- Manilla de puerta
- Placa de montaje
117098
MGB-L1B-PNC-R-117098
Módulo de evaluación y módulo de bus MGB-L1…-PN (bloqueo mediante fuerza de resorte) con 4 elementos de mando, conector push-pull
MGB-L1B-PNC-R-117098
Módulo de evaluación y módulo de bus MGB-L1…-PN (bloqueo mediante fuerza de resorte) con 4 elementos de mando, conector push-pull
- Bloqueo con monitorización de bloqueo
- Dispositivo de parada de emergencia conforme a ISO 13850 iluminado
- 3 pulsadores iluminados
- Conector push-pull
- Premontados en placas de montaje
- Switch RT Profinet integrado
- Multicode
Accesorios
Ampliación de funciones
Descargas
Paquete completo
Descargue todos los documentos importantes con un solo clic.
Incluye:
- El manual de instrucciones y, en su caso, la documentación adicional correspondiente o las guías breves.
- En su caso, las fichas de datos como complemento al manual de instrucciones.
- La declaración de conformidad.
Descargar el paquete completo (ZIP, 6,5 MB)
Documentos sueltos
Declaraciones de conformidad
EU-Konformitätserklärung
N.º doc.
Versión
Idioma
Tamaño
EU-Konformitätserklärung
N.º doc.
EDC2123624
Versión
Idioma
Tamaño
0,2 MB
UKCA-Konformitätserklärung
N.º doc.
Versión
Idioma
Tamaño
UKCA-Konformitätserklärung
N.º doc.
EDC20001506
Versión
Idioma
Tamaño
0,1 MB
Instrucciones
Operating Instructions Safety Systems MGB-L..B-PN.-… (PROFINET) and With Data Structure Type B
N.º doc.
Versión
Idioma
Tamaño
Operating Instructions Safety Systems MGB-L..B-PN.-… (PROFINET) and With Data Structure Type B
N.º doc.
2115174
Versión
03/24
Idioma
Tamaño
3,9 MB
Betriebsanleitung Sicherheitssysteme MGB-L..B-PN.-… (PROFINET) und mit Datenstruktur Typ B
N.º doc.
2115174
Versión
03/24
Idioma
Tamaño
3,9 MB
Otros documentos
Ejemplos de aplicación
Homologaciones y certificados
DGUV
N.º doc.
Versión
Idioma
Tamaño
DGUV
N.º doc.
Versión
Idioma
Tamaño
0,8 MB
ProfiNET
N.º doc.
Versión
Idioma
Tamaño
ProfiNET
N.º doc.
Versión
Idioma
Tamaño
0,2 MB
ProfiNET
N.º doc.
Versión
Idioma
Tamaño
0,2 MB
WEEE
N.º doc.
Versión
Idioma
Tamaño
WEEE
N.º doc.
ECO20001806
Versión
Idioma
Tamaño
0,1 MB
c UL us
N.º doc.
Versión
Idioma
Tamaño
c UL us
N.º doc.
Versión
Idioma
Tamaño
0,7 MB
CAD/eCAD
Datos de pedido
| N.º de pedido | 117102 |
| Nombre de artículo | MGB-L1HB-PNC-R-117102 |
| Peso bruto | 5,072kg |
| Partida arancelaria | 85371098 |
| ECLASS | 27-27-24-05 Safety-related transponder switch with guardlocking |














