RIEGEL TP-AF-NIRO (N.º de pedido 095220)
Cerrojo para interruptor de seguridad TP con desbloqueo antipánico
- Cerrojo para interruptores de seguridad con desbloqueo antipánico TP
- Cerrojo de acero inoxidable
- Para puertas con sujeción a la derecha
- Palanca de desbloqueo antipánico
- Botón del pestillo en posición abierta
- Adecuado para una apertura de puerta de aprox. 15 mm

Descripción
Alcance de suministros
- Partes del cerrojo
- Actuador
Pedido aparte:
- Interruptor de seguridad
Pestillo en posición abierta.
La finalidad del pestillo en posición abierta es evitar que las personas se queden encerradas en una máquina desde dentro.
Desbloqueo antipánico
Los cerrojos con desbloqueo antipánico disponen de una palanca antipánico que permite abrir el cerrojo desde el interior de un resguardo.
Tipos de puerta y sujeción de puerta
Adecuado para puertas batientes y correderas Adecuado para puertas con sujeción a la derecha Con tope, la puerta no puede abrirse hacia dentro.
Pieza de bloqueo integrada
Mediante esta pieza, el cerrojo puede asegurarse en la posición abierta, por ejemplo, con cerraduras. Permite evitar que las personas se queden encerradas de forma accidental dentro de la zona de peligro.

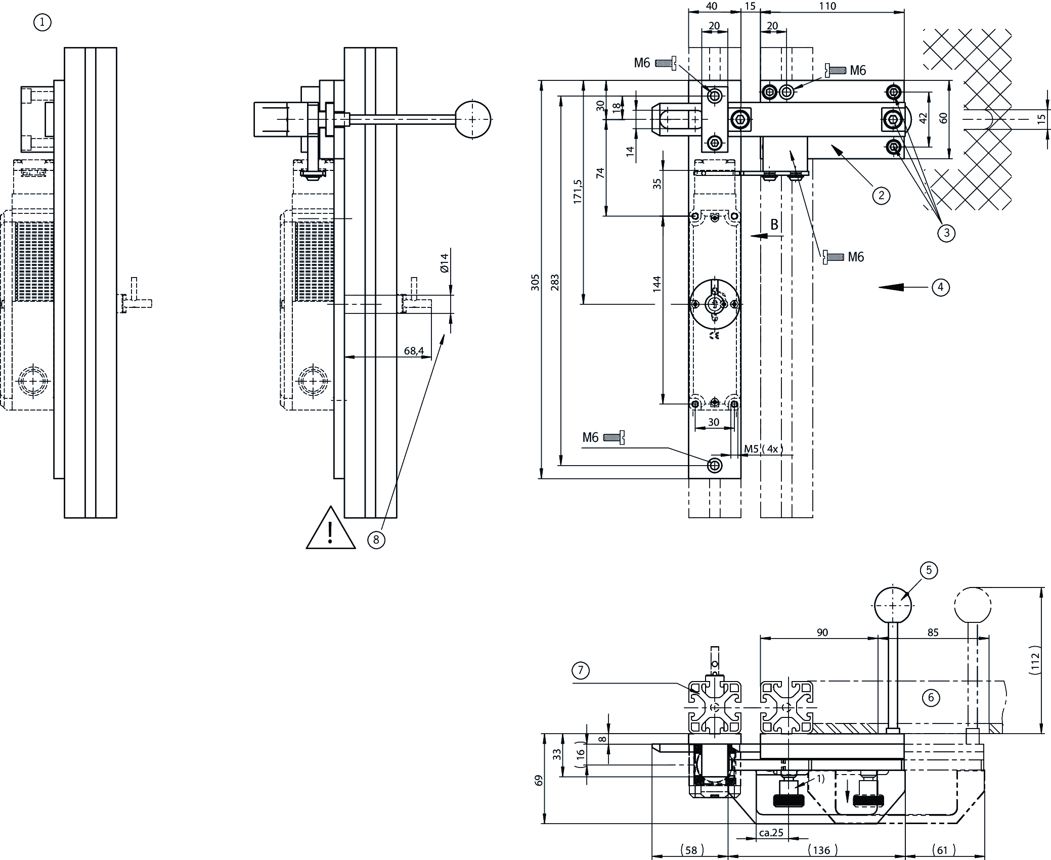
Dibujos acotados

| 1 | Vista B |
| 1) | Cerrojo con mecanismo de pestillo. Queda encajado en posición abierta. (Evita el cierre involuntario del cerrojo). Se desbloquea elevando del botón del pestillo. |
| 2 | Cerrojo, carril y piezas individuales (tornillos, arandelas…) de acero inoxidable + empuñadura de GFK |
| 3 | Tornillo de tope asegurado |
| 4 | Interruptores de seguridad TP… Dirección de ataque A |
| 5 | Suministrado suelto |
| 6 | Puerta con sujeción a la derecha |
| 7 | Bastidor de la rejilla protectora (40 × 40) |
| 8 | Al accionar el desbloqueo antipánico del interruptor, el actuador no debe estar sometido a un esfuerzo de tracción (por ejemplo, por puertas en tensión o tracción en la palanca del cerrojo). |
Datos técnicos
Valores mecánicos y entorno
| Dirección de ataque | A |
| Número de interruptores de seguridad montables | 1 |
| Desbloqueo antipánico | Sí |
| Temperatura de almacenamiento | -25 ... 70 °C |
| Material | |
| Placa de base | Acero inoxidable |
| Manilla | Plástico |
| Listones guía | Acero inoxidable |
| Soporte de fijación | Acero inoxidable |
Varios
| Posición de parada abierta | Pestillo de perno |
Descargas
Paquete completo
Descargue todos los documentos importantes con un solo clic.
Incluye:
- El manual de instrucciones y, en su caso, la documentación adicional correspondiente o las guías breves.
- En su caso, las fichas de datos como complemento al manual de instrucciones.
- La declaración de conformidad.
Safety Information for Bolts
Information de sécurité pour verrous-targettes
Sicherheitsinformation für Riegel
Datos de pedido
| N.º de pedido | 095220 |
| Nombre de artículo | RIEGEL TP-AF-NIRO |
| Peso bruto | 2,438kg |
| Partida arancelaria | 83014090000 |
