MGB-L1HB-PNC-L-117103 (Order no. 117103)
Choose content
Locking set MGB-L1...-PN... (guard locking by spring force) with 4 control elements, push-pull plug
- Guard locking with guard lock monitoring
- Emergency stop according to ISO 13850, illuminated
- 3 illuminated pushbuttons
- including adhesive labels
- Push-pull plug
- Pre-assembled on mounting plates
- Integrated Profinet RT switch
- Multicode

Description
Profinet connection
Connection via push-pull plugs according to IEC 61076-3-117
Profinet RT switch
Point-to-point topology network structure due to integrated RT switch.
Flexible use as interlocking or guard locking
By means of the corresponding evaluation of the safe device data by the control system, use can be as either interlocking or guard locking (with or without monitoring).
Emergency stop illuminated
Emergency stop with illumination that can be controlled as required.







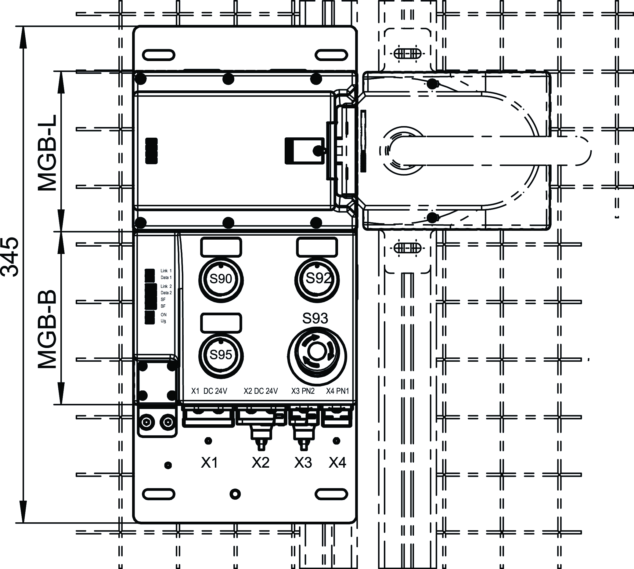
Dimensional drawings

Technical data
Approvals



Handle modules MGB-H-AA1A2-L-106221 (Order no. 106221)
Mechanical values and environment
| Installation orientation | Door hinge DIN left |
| Storage temperature | -25 ... 70 °C |
| Degree of protection | IP65 |
| Ambient temperature | -20 ... 55 °C |
| Material | |
| Housing | Fiber glass reinforced plastic, nickel-plated die-cast zinc, stainless steel |
Miscellaneous
| Additional feature | with mounting plate |
Locking modules MGB-L1B-PNC-L-117099 (Order no. 117099)
Workspace
| Secured switch-off distance sar | |
| Only for sliding door | 20 mm (Applies only to use on sliding doors with deactivated guard lock monitoring) |
Operating and display elements
| Occupancy diagram | |
| B1 | |
| L0 |
| Item | Color | Extras | Note slide-in label | Switching element | Slide-in label | Version | Number | Designation1 | LED |
|---|---|---|---|---|---|---|---|---|---|
| 90 | white | 1NO | Illuminated pushbutton | ||||||
| 92 | blue | 1NO | Illuminated pushbutton | ||||||
| 93 | with adhesive ring | 2 PD | Emergency stop illuminated | ||||||
| 95 | white | 1NO | Illuminated pushbutton |
Electrical connection values
| Connecting cable | |
| Ethernet | Profinet I/O cable, at least cat. 5e |
| Rated insulation voltage Ui | 75 V |
| Rated impulse voltage Uimp | 0.5 kV |
| EMC protection requirements | In accordance with EN 61000-4 and EN 61326-3-1 |
| maximum feed-in current in the connection block | |
| X1, X2 | max. 4000 mA |
| Safety class | III |
| Current consumption | max. 500 mA |
| Transponder coding | Multicode |
| Degree of contamination (external, according to EN 60947-1) | 3 |
| Power supply X1 | |
| Fuse | |
| external | min. 1 A slow blow |
| Operating voltage DC | |
| L1 | 24 V DC -15% ... +10% ((reverse polarity protected, regulated, residual ripple<5%, PELV)) |
| Auxiliary voltage DC | |
| L2 | 24 V DC -15% ... +10% (The auxiliary voltage is not required for the MGB system) |
| Power supply X2 | |
| Operating voltage DC | |
| L1 | 24 V DC -15% ... +10% (For looping through for connected devices) |
| Auxiliary voltage DC | |
| L2 | 24 V DC -15% ... +10% (For looping through for connected devices) |
Mechanical values and environment
| Connection type | |
| Push-pull power (X1 (The document PROFINET 'Cabling and Interconnection Technology' from the PNO aids in the correct selection of cables.)) | |
| according to IEC 61076-3-117, variant 14, screened, Profinet I/O cable, at least cat. 5e | Push-pull RJ45 (X3 (The document PROFINET 'Cabling and Interconnection Technology' from the PNO aids in the correct selection of cables.)) |
| according to IEC 61076-3-117, variant 14, screened, Profinet I/O cable, at least cat. 5e | Push-pull RJ45 (X4 (The document PROFINET 'Cabling and Interconnection Technology' from the PNO aids in the correct selection of cables.)) |
| Push-pull power (X2 (The document PROFINET 'Cabling and Interconnection Technology' from the PNO aids in the correct selection of cables.)) | |
| Installation orientation | Door hinge DIN left |
| Switching frequency | 0.25 Hz |
| Storage temperature | -25 ... 70 °C |
| Mechanical life | |
| in case of use as door stop, and 1 Joule impact energy | 0.1 x 10⁶ |
| 1 x 10⁶ | |
| Response time | |
| Bolt position | max. 550 ms Turn-off time (The reaction time is the max. time between the change in the input status and the deletion of the corresponding bit in the bus protocol.) |
| Door position | max. 550 ms Turn-off time (The reaction time is the max. time between the change in the input status and the deletion of the corresponding bit in the bus protocol.) |
| Guard locking | max. 550 ms Turn-off time (The reaction time is the max. time between the change in the input status and the deletion of the corresponding bit in the bus protocol.) |
| Emergency stop / machine stop | max. 250 ms Turn-off time (The reaction time is the max. time between the change in the input status and the deletion of the corresponding bit in the bus protocol.) |
| Shock and vibration resistance | Acc. to EN IEC 60947-5-3 |
| Degree of protection | IP54 |
| Ambient temperature | |
| at UB = 24 V DC | -20 ... 55 °C |
| Material | |
| Housing | Fiber glass reinforced plastic, nickel-plated die-cast zinc, stainless steel |
| Locking force FZh | 2000 N |
| Guard locking principle | Closed-circuit current principle |
Characteristic values according to EN ISO 13849-1 and EN IEC 62061
| PL | Maximum SIL | PFHD | Category | Mission time | |
|---|---|---|---|---|---|
| Control of guard locking | PL e | - | 3.91x10-8 | 4 | 20 y |
| Monitoring of the guard position | PL e | 3 | 4.07x10-8 | 4 | 20 y |
| Guard lock monitoring | PL e | 3 | 4.07x10-8 | 4 | 20 y |
| Evaluating safety signals | PL e | 3 | 4.1x10-8 | 4 | 20 y |
| Applies to all additionally included safety functions such as emergency stop, enabling switch, etc. | |||||
| B10D | Mission time | |
|---|---|---|
| Emergency stop | 0.13x106 | 20 y |
Miscellaneous
| Slide-in label | ||||||||||||||||
| ||||||||||||||||
Interface
| Bus data protocol | Profinet (IEC 61158 type 10) |
| Safety data protocol | Profisafe (IEC 61784-3-3) |
| Date interface | Ethernet |
Components
106221
MGB-H-AA1A2-L-106221
Handle module MGB-H-...
MGB-H-AA1A2-L-106221
Handle module MGB-H-...
- Intelligent bolt tongue
- Lockout mechanism
- Door handle
- Mounting plate
117099
MGB-L1B-PNC-L-117099
Evaluation module and bus module MGB-L1...-PN (guard locking by spring force) with 4 control elements, push-pull plug
MGB-L1B-PNC-L-117099
Evaluation module and bus module MGB-L1...-PN (guard locking by spring force) with 4 control elements, push-pull plug
- Guard locking with guard lock monitoring
- Emergency stop according to ISO 13850, illuminated
- 3 illuminated pushbuttons
- Push-pull plug
- Pre-assembled on mounting plates
- Integrated Profinet RT switch
- Multicode
Accessories
Downloads
Complete package
Download all important documents with a single click.
Content:
- The operating instructions and any additions to the operating instructions or brief instructions
- Any data sheets to supplement the operating instructions
- The declaration of conformity
Download Complete Package (ZIP, 6,5 MB)
Single Documents
Declarations of conformity
EU-Konformitätserklärung
Doc. no.
Version
Language
Size
EU-Konformitätserklärung
Doc. no.
EDC2123624
Version
Language
Size
0,2 MB
UKCA-Konformitätserklärung
Doc. no.
Version
Language
Size
UKCA-Konformitätserklärung
Doc. no.
EDC20001506
Version
Language
Size
0,1 MB
Instructions
Operating Instructions Safety Systems MGB-L..B-PN.-… (PROFINET) and With Data Structure Type B
Doc. no.
Version
Language
Size
Operating Instructions Safety Systems MGB-L..B-PN.-… (PROFINET) and With Data Structure Type B
Doc. no.
2115174
Version
03/24
Language
Size
3,9 MB
Betriebsanleitung Sicherheitssysteme MGB-L..B-PN.-… (PROFINET) und mit Datenstruktur Typ B
Doc. no.
2115174
Version
03/24
Language
Size
3,9 MB
Other Documents
Application examples
Approvals and certificates
DGUV
Doc. no.
Version
Language
Size
DGUV
Doc. no.
Version
Language
Size
0,8 MB
ProfiNET
Doc. no.
Version
Language
Size
ProfiNET
Doc. no.
Version
Language
Size
0,2 MB
ProfiNET
Doc. no.
Version
Language
Size
0,2 MB
WEEE
Doc. no.
Version
Language
Size
WEEE
Doc. no.
ECO20001806
Version
Language
Size
0,1 MB
c UL us
Doc. no.
Version
Language
Size
c UL us
Doc. no.
Version
Language
Size
0,7 MB
CAD/eCAD
Ordering data
| Ordernumber | 117103 |
| Item designation | MGB-L1HB-PNC-L-117103 |
| Gross weight | 5,036kg |
| Customs tariff number | 85371098 |
| ECLASS | 27-27-24-05 Safety-related transponder switch with guardlocking |














