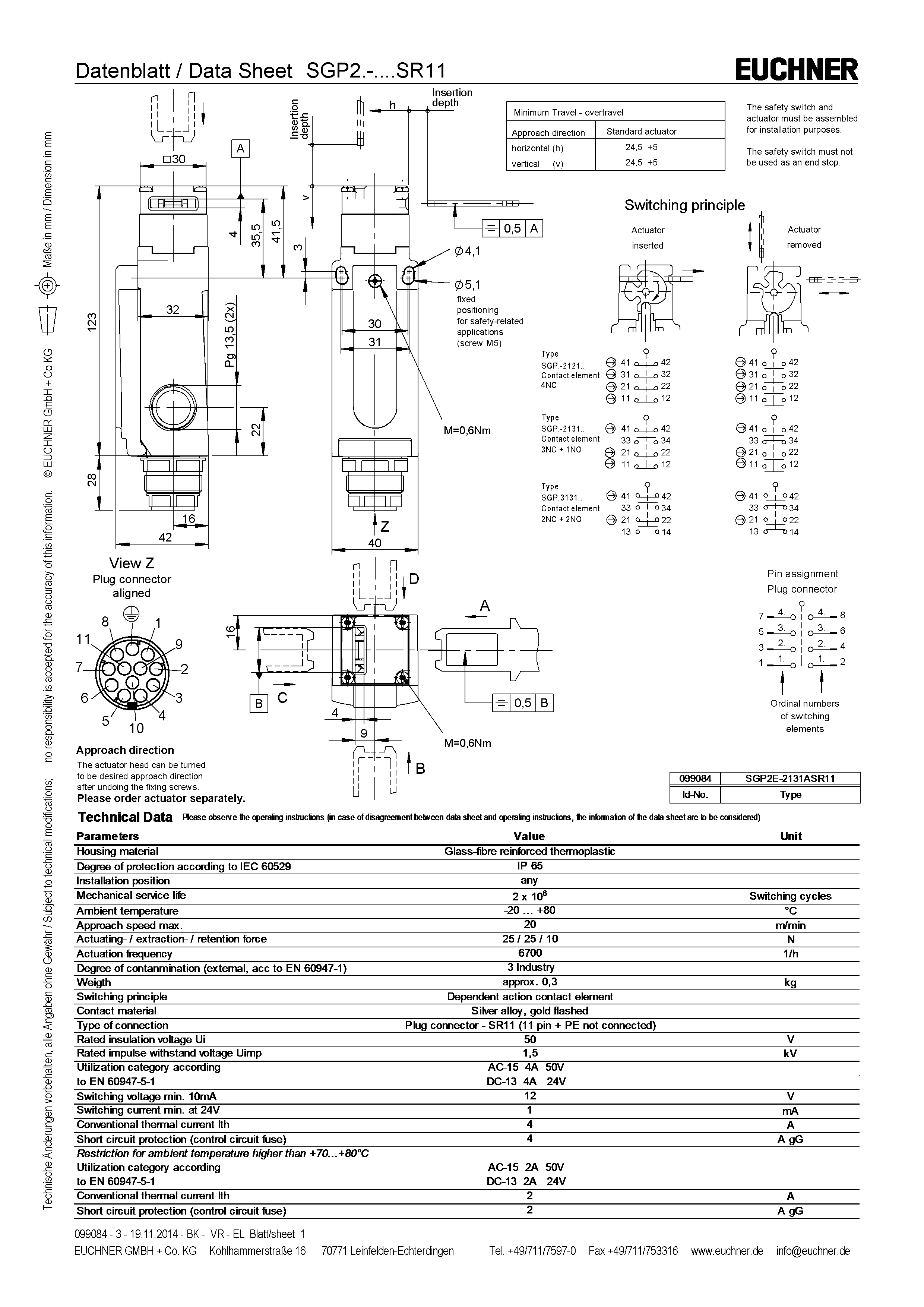
SGP2E-2131ASR11 (Order no. 099084)

Safety switch SGP, plug connector SR11

  • Plug connector SR11, 11-pin (without PE)
  • 3 pos. driven contact
  • 1 NO contacts
SGP2E-2131ASR11 (Order no. 099084)

Description

Approach direction

Horizontal and vertical

Can be adjusted in 90° steps

Switching element

2131

Slow-action switching contact 3 positively driven contacts + 1 NO contact

Accessories required

Actuator is not included.

Dimension drawing
Dimension drawing
Wiring diagram 2131
Wiring diagram 2131
Electromechanical safety switches in use

Dimensional drawings

Dimensional drawings

Connection examples

Connection examples

Technical data

Approvals

TÜV Rheinland_SGP_968/EL 473.04/22CCC2024010305643681_GP_SGP_SGAc_UL_us_E155795_2/4

Electrical connection values

Fuse max. 4 A gG (>70 °C =>2 A gG)
Rated insulation voltage Ui 50 V
Rated impulse voltage Uimp 1.5 kV
Utilization category
AC-15 4 A 50 V (>70 °C =>2 A)
DC-13 4 A 24 V (>70 °C =>2 A)
Switching voltage
min. at 10 mA 12 V
Switching current
min. at 24 V 1 mA
thermal rated current Ith 4 A (>70 °C =>2 A)

Mechanical values and environment

Anfahrgeschwindigkeit max. 20 m/min
Approach direction A
Connection type
1 x Plug connector SR11 (11-pin (without PE))
Number of door position NO contacts 1
Number of door position positively driven contacts 3
Extraction force 25 N
Actuation frequency max. 6700 1/h
Actuating force 25 N
Installation orientation any
Insertion depth 24.5 mm
Storage temperature -25 ... 80 °C
Mechanical life 2 x 10⁶
Retention force 10 N
Switching principle Slow-action switching contact
Degree of protection IP65
Ambient temperature -20 ... 80 °C
Material
Housing Reinforced thermoplastic
Contact Silver alloy, gold flashed

Characteristic values according to EN ISO 13849-1 and EN IEC 62061

B10DMission time
Monitoring of the guard position3x10620 y
Important! Values valid at DC-13 100 mA/24V


In combination with actuator ACTUATOR-S-GT-SN

Overtravel 5 mm

Accessories

Downloads

Complete package

Download all important documents with a single click.

Content:

  • The operating instructions and any additions to the operating instructions or brief instructions
  • Any data sheets to supplement the operating instructions
  • The declaration of conformity
Download Complete Package (ZIP, 3,1 MB)

Single Documents

Other Documents

Ordering data

Ordernumber 099084
Item designation SGP2E-2131ASR11
Gross weight 0,239kg
Customs tariff number 85365019000
ECLASS 27-27-26-02 Safety switch with separate actuator (Type 2)