HomeProductsElectromechanical safety switches without guard lockingNZ.VZ robust safety switchNZ2VZ-2131E-10C-FW
NZ2VZ-2131E-10C-FW (Order no. 095896)
Choose content
Safety switch NZ.VZ, plug connector MR10
- Plug connector MR10, 9-pin + PE
- 3 pos. driven contact
- 1 NO contacts

Description
Switching element
2131H | Slow-action switching contact 3 positively driven contacts |
Accessories required
Actuator is not included.
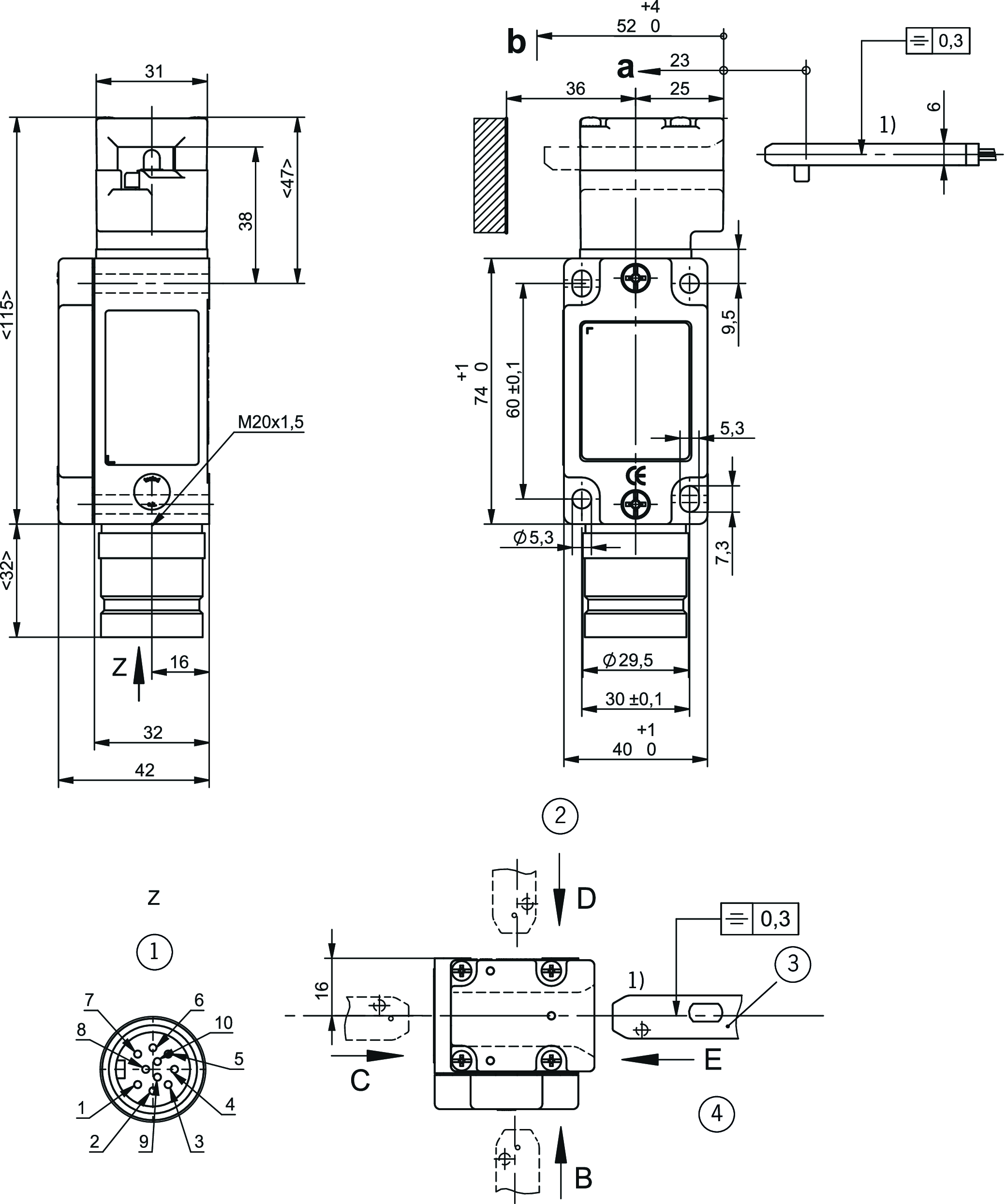
Functional drawings

Dimensional drawings

| 1 | Plug connector not aligned, MENCOM (10 pin) MIN-10MR-1-18-M20 (www.mencomcorp.com) |
| 1) | The safety switch and actuator must be placed together for attachment to the machine. |
| 2 | Actuating direction can be changed |
| 3 | Order actuator separately. Do not use actuator as an end stop. Limit overtravel separately. |
| 4 | Standard E (A) approach direction in the default setting on delivery A |
| a | Travel without operation: actuator is in the guide slot, but function is not triggered. |
| b | Switching operation completed: actuator must be inserted to this point to ensure safe switching. The actuator must be withdrawn at least to point a for switching off. |
Connection examples

Technical data
Approvals



Electrical connection values
| Fuse | max. 4 A gG |
| Rated insulation voltage Ui | 250 V |
| Rated impulse voltage Uimp | 1.5 kV |
| Utilization category | |
| AC-15 | 4 A 230 V |
| DC-13 | 4 A 24 V |
| Switching voltage | 12 V |
| Switching current | |
| min. at 24 V | 1 mA |
| thermal rated current Ith | 4 A |
Mechanical values and environment
| Anfahrgeschwindigkeit | max. 20 m/min |
| Approach direction | A |
| Connection type | |
| 1 x | Plug connector BHA10 (9-pin + PE) |
| Number of door position NO contacts | 1 |
| Number of door position positively driven contacts | 3 |
| Extraction force | 35 N |
| Actuation frequency | max. 1200 1/h |
| Actuating force | 35 N |
| Installation orientation | any |
| Insertion depth | 52 mm |
| Storage temperature | -25 ... 80 °C |
| Mechanical life | 2 x 10⁶ |
| Retention force | 8 N |
| Switching principle | Slow-action switching contact |
| Degree of protection | IP67 |
| Ambient temperature | -25 ... 80 °C |
| Material | |
| Contact | Silver alloy, gold flashed |
| Housing | Anodized die-cast alloy |
Characteristic values according to EN ISO 13849-1 and EN IEC 62061
| B10D | Mission time | |
|---|---|---|
| Monitoring of the guard position | 4.5x106 | 20 y |
| Important! Values valid at DC-13 100 mA/24V | ||
In combination with actuator ACTUATOR-Z-G
| Overtravel | 4 mm |
In combination with actuator ACTUATOR-Z-GN
| Overtravel | 16 mm |
Accessories
Actuator
Connection material
Downloads
Complete package
Download all important documents with a single click.
Content:
- The operating instructions and any additions to the operating instructions or brief instructions
- Any data sheets to supplement the operating instructions
- The declaration of conformity
Download Complete Package (ZIP, 5,5 MB)
Single Documents
Declarations of conformity
EU-Konformitätserklärung
Doc. no.
Version
Language
Size
EU-Konformitätserklärung
Doc. no.
EDC2539628
Version
Language
Size
0,2 MB
UKCA-Konformitätserklärung
Doc. no.
Version
Language
Size
UKCA-Konformitätserklärung
Doc. no.
EDC20001551
Version
Language
Size
0,1 MB
Instructions
Operating Instructions Safety Switch NZ.VZ
Doc. no.
Version
Language
Size
Operating Instructions Safety Switch NZ.VZ
Doc. no.
2094060
Version
08/25
Language
Size
0,8 MB
Mode d’emploi Interrupteur de sécurité NZ.VZ
Doc. no.
2094060
Version
08/25
Language
Size
0,8 MB
Manual de instrucciones Interruptor de seguridad NZ.VZ
Doc. no.
2094060
Version
08/25
Language
Size
0,8 MB
Betriebsanleitung Sicherheitsschalter NZ.VZ
Doc. no.
2094060
Version
08/25
Language
Size
0,9 MB
Istruzioni di impiego Finecorsa di sicurezza NZ.VZ
Doc. no.
2094060
Version
08/25
Language
Size
0,8 MB
Käyttöohje Turvakytkimet NZ.VZ
Doc. no.
2094060
Version
08/25
Language
Size
0,8 MB
Instrukcja obsługi Wyłącznik bezpieczeństwa NZ.VZ
Doc. no.
2094060
Version
08/25
Language
Size
1,3 MB
Instruktionsbok Säkerhetsbrytare NZ.VZ
Doc. no.
2094060
Version
08/25
Language
Size
0,8 MB
Návod na prevádzku Bezpečnostný spínač NZ.VZ
Doc. no.
2094060
Version
08/25
Language
Size
1,3 MB
Other Documents
Approvals and certificates
CCC
Doc. no.
Version
Language
Size
CCC
Doc. no.
20001849
Version
Language
Size
0,0 MB
DNV-GL
Doc. no.
Version
Language
Size
DNV-GL
Doc. no.
Version
Language
Size
0,2 MB
WEEE
Doc. no.
Version
Language
Size
WEEE
Doc. no.
ECO20001806
Version
Language
Size
0,1 MB
c UL us
Doc. no.
Version
Language
Size
c UL us
Doc. no.
Version
Language
Size
0,3 MB
Sales documents
Safety Switches with Metal Housing
Doc. no.
Version
Language
Size
Safety Switches with Metal Housing
Doc. no.
100369
Version
11-03/18
Language
Size
7,8 MB
Interrupteurs de sécurité avec boîtier métallique
Doc. no.
100676
Version
11-03/18
Language
Size
7,9 MB
Interruptores de seguridad con carcasa metálica
Doc. no.
104856
Version
11-03/18
Language
Size
14,0 MB
Sicherheitsschalter mit Metallgehäuse
Doc. no.
100319
Version
11-03/18
Language
Size
7,9 MB
金属壳体 的安全开关
Doc. no.
102453
Version
11-03/18
Language
Size
8,2 MB
Bezpečnostní spínače s kovovým pouzdrem
Doc. no.
121650
Version
11-03/18
Language
Size
7,8 MB
ePlan macros
EUC.095896
Doc. no.
Version
Language
Size
EUC.095896
Doc. no.
Version
Language
Size
0,0 MB
CAD/eCAD
Ordering data
| Ordernumber | 095896 |
| Item designation | NZ2VZ-2131E-10C-FW |
| Gross weight | 0,41kg |
| Customs tariff number | 85365019000 |
| ECLASS | 27-27-26-02 Safety switch with separate actuator (Type 2) |
+ 1 NO contact











