MGB-L2HB-EIA-L-157790 (Best. Nr. 157790)
Inhalte wählen
Zuhalteset MGB-L2...-EI (Zuhaltung durch Magnetkraft) mit 3 Tastern, Not-Halt, 7/8', RC12
- Zuhaltung mit Zuhaltungsüberwachung
- Not-Halt nach ISO 13850 beleuchtet
- 3 Drucktaster beleuchtet
- Anschluss über 7/8" Stecker
- inklusiv Anschlusstecker für Zustimmtaster
- Vormontiert auf Montageplatten
- Unicode

Beschreibung








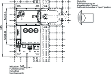
Maßzeichnungen

Anschlussbeispiele

Technische Daten
Zulassungen

Griffmodule MGB-H-AA1A6-L-111839 (Best. Nr. 111839)
Mechanische Werte und Umgebung
| Einbaulage | Türanschlag DIN Links |
| Lagertemperatur | -25 ... 70 °C |
| Schutzart | IP65 |
| Umgebungstemperatur | -20 ... 55 °C |
| Werkstoff | |
| Gehäuse | Glasfaserverstärkter Kunststoff, Zinkdruckguss, vernickelt, Nichtrostender Stahl |
Verschiedenes
| Zusätzliches Merkmal | mit Anbauplatte und automatischem Sperreinsatz |
Zuhaltemodule MGB-L2B-EIA-L-136523 (Best. Nr. 136523)
Arbeitsbereich
| Gesicherter Ausschaltabstand sar | |
| Nur bei Schiebetür | 20 mm (Gilt nur für die Verwendung an Schiebetüren bei deaktivierter Zuhaltungsüberwachung) |
Bedien- und Anzeigeelemente
| Belegungsschema | |
| L1 | |
| B1 |
| Position | Farbe | Extras | Schaltelement | Einlegeschild Anmerkung | Einlegeschild | Ausführung | Anzahl | Bezeichnung1 | LED |
|---|---|---|---|---|---|---|---|---|---|
| 1 | mit Klebering | 2ZÖ | Nothalt beleuchtet | ||||||
| 90 | 1S | Taster beleuchtet | |||||||
| 91 | 1S | Taster beleuchtet | |||||||
| 92 | 1S | Taster beleuchtet |
Elektrische Anschlusswerte
| Anschlussleitung | |
| Ethernet | Ethernet/IP Leitung, mind. Cat. 5e |
| Bemessungsisolationsspannung Ui | 75 V |
| Bemessungsstoßspannung Uimp | 0.5 kV |
| Einschaltzeit | min. 1000 ms |
| EMV-Schutzanforderungen | Gemäß EN 61000-4 und EN 61326-3-1 |
| maximaler Einspeisestrom im Anschlussblock | |
| X1, X2 | max. 4000 mA |
| Schutzklasse | III |
| Stromaufnahme | max. 500 mA |
| Transponder-Codierung | Unicode |
| Verschmutzungsgrad (extern, nach EN 60947-1) | 3 |
| Spannungsversorgung X1 | |
| Absicherung | |
| extern | min. 1 A träge |
| Betriebsspannung DC | |
| L1 | 24 V DC -15% ... +10% ((verpolsicher, geregelt, Restwelligkeit <5%, PELV)) |
| Hilfsspannung DC | |
| L2 | 24 V DC -15% ... +10% (Die Hilfsspannung wird für das MGB-System nicht benötigt) |
| Spannungsversorgung X2 | |
| Betriebsspannung DC | |
| L1 | 24 V DC -15% ... +10% (Zum Weiterschleifen für nachfolgende Geräte) |
| Hilfsspannung DC | |
| L2 | 24 V DC -15% ... +10% (Zum Weiterschleifen für nachfolgende Geräte) |
Mechanische Werte und Umgebung
| Anschlussart | |
| 7/8" Power (X1) | |
| 7/8" Power (X2) | |
| Ethernet/IP Leitung, mind. Cat. 5e | M12 D-coded, geschirmt (X3) |
| für Zustimmtaster | Steckverbinder RC12 (X14) |
| Ethernet/IP Leitung, mind. Cat. 5e | M12 D-coded, geschirmt (X4) |
| Einbaulage | Türanschlag DIN Links |
| Schaltfrequenz | 0.25 Hz |
| Lagertemperatur | -25 ... 70 °C |
| Mechanische Lebensdauer | |
| bei Verwendung als Türanschlag und 1 Joule Aufprallenergie | 0.1 x 10⁶ |
| 1 x 10⁶ | |
| Reaktionszeit | |
| Zustimmtaster | max. 100 ms Abschaltzeit (Die Reaktionszeit ist die maximale Zeit zwischen der Änderung eines Eingangszustandes und dem Löschen des entsprechenden Bits im Busprotokoll.) |
| Türstellung | max. 250 ms Abschaltzeit (Die Reaktionszeit ist die maximale Zeit zwischen der Änderung eines Eingangszustandes und dem Löschen des entsprechenden Bits im Busprotokoll.) |
| Zuhaltung | max. 250 ms Abschaltzeit (Die Reaktionszeit ist die maximale Zeit zwischen der Änderung eines Eingangszustandes und dem Löschen des entsprechenden Bits im Busprotokoll.) |
| Riegelstellung | max. 250 ms Abschaltzeit (Die Reaktionszeit ist die maximale Zeit zwischen der Änderung eines Eingangszustandes und dem Löschen des entsprechenden Bits im Busprotokoll.) |
| Not-Halt | max. 100 ms Abschaltzeit (Die Reaktionszeit ist die maximale Zeit zwischen der Änderung eines Eingangszustandes und dem Löschen des entsprechenden Bits im Busprotokoll.) |
| Schock- und Schwingfestigkeit | gemäß EN IEC 60947-5-3 |
| Schutzart | IP54 |
| Umgebungstemperatur | |
| bei UB = 24 V DC | -20 ... 55 °C |
| Werkstoff | |
| Gehäuse | Glasfaserverstärkter Kunstoff, Zinkdruckguss, vernickelt, Nichtrostender Stahl |
| Zuhaltekraft FZh | 2000 N |
| Zuhaltungsprinzip | Arbeitsstromprinzip |
Kennwerte nach EN ISO 13849-1 / EN IEC 62061
| PL | maximaler SIL | PFHD | Kategorie | Gebrauchsdauer | |
|---|---|---|---|---|---|
| Überwachen der Stellung der Schutzeinrichtung | PL e | 3 | 3.37x10-9 | 4 | 20 y |
| Überwachen der Zuhaltung | PL e | 3 | 3.37x10-9 | 4 | 20 y |
| Auswerten von Sicherheitssignalen | PL e | 3 | 3.05x10-9 | 4 | 20 y |
| Gilt für alle zusätzlich enthaltenen Sicherheitsfunktionen wie Not-Halt, Zustimmtaster usw. | |||||
| B10D | Gebrauchsdauer | |
|---|---|---|
| Not-Halt | 0.13x106 | 20 y |
Verschiedenes
| Zusätzliches Merkmal | inkl. Blenden-Set Id. Nr. 120344 |
Interface
| Datenprotokoll Bus | Ethernet/IP |
| Datenprotokoll Sicherheit | CIP Safety |
| Datenschnittstelle | Ethernet |
Komponenten

111839
MGB-H-AA1A6-L-111839
Griffmodul MGB-H... mit selbstausfahrendem Sperreinsatz
MGB-H-AA1A6-L-111839
Griffmodul MGB-H... mit selbstausfahrendem Sperreinsatz
- Intelligente Riegelzunge
- Sperreinsatz ausklappbar
- Zweiter Sperreinsatz selbstausfahrend
- Türgriff
- Montageplatte
136523
MGB-L2B-EIA-L-136523
Zuhaltemodul MGB-L2...-EI (Zuhaltung durch Federkraft) mit 3 Tastern, Not-Halt
MGB-L2B-EIA-L-136523
Zuhaltemodul MGB-L2...-EI (Zuhaltung durch Federkraft) mit 3 Tastern, Not-Halt
- Zuhaltung mit Zuhaltungsüberwachung
- Not-Halt nach ISO 13850 beleuchtet
- 3 Drucktaster beleuchtet
- Anschluss über 7/8" und M12 Stecker
- inklusiv Anschlusstecker für Zustimmtaster
- Vormontiert auf Montageplatten
- Integrierter Profinet RT-Switch
- Unicode
Zubehör
Funktionserweiterung
Fluchtentriegelungsmodul MGB-E... auf Montageplatte vormontiert

106051
MGB-E-A2-106051
MGB-E-A2-106051
- Fluchtentriegelung aus dem Gefahrenbereich
- Auf Montageplatte montiert
- Türgriff signalrot
- Ausgelegt für Türprofile bis 40 mm
- Verlängerte Betätigungsachse für stärkere Türen (optional erhältlich)

126320
MGB-E-A8-126320
MGB-E-A8-126320
- Fluchtentriegelung aus dem Gefahrenbereich
- Auf Montageplatte montiert
- Türknauf signalrot
- Ausgelegt für Türprofile bis 40 mm
- Verlängerte Betätigungsachse für stärkere Türen (optional erhältlich)
MGB-EI
ZSB
Downloads
Gesamtpaket
Alle wichtigen Dokumente mit einem Klick downloaden.
Enthält:
- Die Betriebsanleitung und ggf. Ergänzungen zur Betriebsanleitung oder Kurzanleitungen
- Ggf. Datenblätter als Ergänzung zur Betriebsanleitung
- Die Konformitätserklärung
Gesamtpaket herunterladen (ZIP, 11,1 MB)
Einzeldokumente
Anleitungen
Betriebsanleitung Sicherheitssysteme MGB-L..B-EI-… (Ethernet/IP) und mit Datenstruktur Typ A
Dok.-Nr.
Version
Sprache
Größe
Betriebsanleitung Sicherheitssysteme MGB-L..B-EI-… (Ethernet/IP) und mit Datenstruktur Typ A
Dok.-Nr.
2126330
Version
09/23
Sprache
Größe
2,9 MB
Operating Instructions Safety Systems MGB-L..B-EI-… (Ethernet/IP) and With Data Structure Type A
Dok.-Nr.
2126330
Version
09/23
Sprache
Größe
2,9 MB
Manual de instrucciones Sistemas de seguridad MGB-L..B-EI-… (Ethernet/IP) y con estructura de datos de tipo A
Dok.-Nr.
2126330
Version
09/23
Sprache
Größe
2,9 MB
사용 설명서 안전 시스템 MGB-L..B-EI-…(이더넷/IP) 및 데이터 구조 타입 A 포함
Dok.-Nr.
2126330
Version
09/23
Sprache
Größe
3,3 MB
Instrucțiuni de utilizare Sisteme de siguranță MGB-L..B-EI-… (Ethernet/IP) și cu structură de date tip A
Dok.-Nr.
2126330
Version
09/23
Sprache
Größe
3,3 MB
Konformitätserklärungen
EU-Konformitätserklärung
Dok.-Nr.
Version
Sprache
Größe
EU-Konformitätserklärung
Dok.-Nr.
EDC2123624
Version
Sprache
Größe
0,2 MB
UKCA-Konformitätserklärung
Dok.-Nr.
Version
Sprache
Größe
UKCA-Konformitätserklärung
Dok.-Nr.
EDC20001506
Version
Sprache
Größe
0,1 MB
Sonstige Dokumente
Zulassungen und Bescheinigungen
WEEE
Dok.-Nr.
Version
Sprache
Größe
WEEE
Dok.-Nr.
ECO20001806
Version
Sprache
Größe
0,1 MB
c UL us
Dok.-Nr.
Version
Sprache
Größe
c UL us
Dok.-Nr.
Version
Sprache
Größe
0,7 MB
Bestelldaten
| Bestellnummer | 157790 |
| Artikelbezeichnung | MGB-L2HB-EIA-L-157790 |
| Bruttogewicht | 5,98kg |
| Zolltarifnummer | 85371098 |
| ECLASS | 27-27-24-05 Sicherheitsgerichteter Transponderschalter mit Zuhaltung |














