MGB-L2B-PNA-L-125577 (Obj. č. 125577)
Zvolte obsah
Vyhodnocovací modul a sběrnicový modul MGB-L2...-PN... (Jištění ochranného krytu silou elektromagnetu), 2× ovládací prvek, zástrčka 7/8" a M12
- Jištění s monitorováním stavu jištění
- 2× prosvětlené tlačítko
- Včetně nalepovacích štítků
- Připojení pomocí konektorů 7/8" a M12
- Předem namontováno na montážních deskách
- Integrovaný switch Profinet RT
- Unicode

Popis
Napojení na sběrnici Profinet
7/8" konektor podle ANSI/B93.55M-1981 a konektor M12 (kódování d) podle IEC 61076-2-101
Switch Profinet RT
Sběrnicová síťová topologie díky integrovanému switchi RT.
Flexibilní využití k blokování nebo jištění
Díky odpovídajícímu vyhodnocování bezpečných dat přístrojů v řídicím systému lze systém volitelně používat buď ve funkci blokování, nebo ve funkci jištění (s monitorováním nebo bez monitorování).

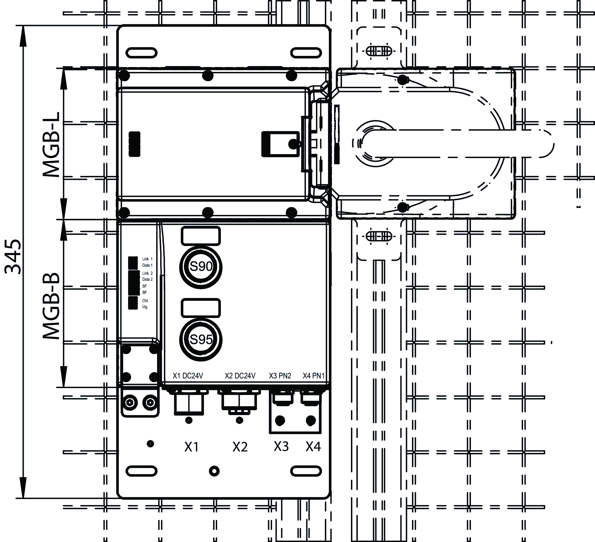
Rozměrové výkresy

Technické údaje
Schválení



Pracovní prostor
| Zajištěná vzdálenost vypnutí sar | |
| Jen u posuvných dveří | 20 mm (Platí jen pro použití na posuvných dveřích s deaktivovaným monitorováním stavu jištění) |
Ovládací a zobrazovací prvky
| Diagram obsazenosti | |
| B1 | |
| L0 |
| Poloha | Barva | Doplňky | Vkládací štítek | Provedení | Spínací jednotka | Vkládací štítek | Počet | Označení1 | LED |
|---|---|---|---|---|---|---|---|---|---|
| 90 | Prosvětlené tlačítko | 1× spínací kontakt | |||||||
| 95 | Prosvětlené tlačítko | 1× spínací kontakt |
Hodnoty elektrického připojení
| Připojovací kabel | |
| Ethernet | Kabel Profinet I/O, min. kat. 5e |
| Návrhové izolační napětí Ui | 75 V |
| Jmenovité impulzní napětí Uimp | 0.5 kV |
| Požadavky na elektromagnetickou kompatibilitu | Podle normy EN 61000-4 a EN 61326-3-1 |
| Maximální napájecí proud v připojovacím bloku | |
| X1, X2 | max. 4000 mA |
| Třída ochrany | III |
| Odběr proudu | max. 500 mA |
| Kódovaný transpondér | Unicode |
| Stupeň znečištění (externí, podle EN 60947-1) | 3 |
| Napájení X1 | |
| Zajištění | |
| Externí | min. 1 A Pomalá |
| Napájecí napětí DC | |
| L1 | 24 V DC -15% ... +10% ((zabezpečeno proti přepólování, regulováno, zbytkové zvlnění<5 %, PELV)) |
| Pomocné napětí DC | |
| L2 | 24 V DC -15% ... +10% (Pomocné napětí není pro systém MGB zapotřebí) |
| Napájení X2 | |
| Napájecí napětí DC | |
| L1 | 24 V DC -15% ... +10% (K propojení s následnými přístroji) |
| Pomocné napětí DC | |
| L2 | 24 V DC -15% ... +10% (K propojení s následnými přístroji) |
Mechanické hodnoty a prostředí
| Typ připojení | |
| Podle IEC 61076-2-101, kabel Profinet I/O, min. kat. 5e | M12, kódování D, stíněný (X4 (S výběrem správného kabelu vám pomůže dokument PROFINET „Cabling and Interconnection Technology“ organizace PNO.)) |
| Podle IEC 61076-2-101, kabel Profinet I/O, min. kat. 5e | M12, kódování D, stíněný (X3 (S výběrem správného kabelu vám pomůže dokument PROFINET „Cabling and Interconnection Technology“ organizace PNO.)) |
| 7/8" napájení (X1 (S výběrem správného kabelu vám pomůže dokument PROFINET „Cabling and Interconnection Technology“ organizace PNO.)) | |
| 7/8" napájení (X2 (S výběrem správného kabelu vám pomůže dokument PROFINET „Cabling and Interconnection Technology“ organizace PNO.)) | |
| Montážní poloha | Dveřní závěs DIN levý |
| Frekvence spínání | 0.25 Hz |
| Teplota při skladování | -25 ... 70 °C |
| Mechanická životnost | |
| 1 x 10⁶ | |
| Při používání ve funkci dveřního závěsu a nárazové energii 1 J | 0.1 x 10⁶ |
| Doba odezvy | |
| Jištění ochranného krytu | max. 550 ms Vypínací doba (Reakční doba je maximální doba mezi změnou stavu vstupu a smazáním příslušného bitu ve sběrnicovém protokolu.) |
| Poloha petlice | max. 550 ms Vypínací doba (Reakční doba je maximální doba mezi změnou stavu vstupu a smazáním příslušného bitu ve sběrnicovém protokolu.) |
| Poloha dveří | max. 550 ms Vypínací doba (Reakční doba je maximální doba mezi změnou stavu vstupu a smazáním příslušného bitu ve sběrnicovém protokolu.) |
| Odolnost proti nárazům a vibracím | Podle normy EN IEC 60947-5-3 |
| Třída ochrany | IP54 |
| Okolní teplota | |
| Při UB = 24 V DC | -20 ... 55 °C |
| Materiál | |
| Pouzdro | Plast zesílený skelnými vlákny, zinkový tlakový odlitek, niklovaný, nerezová ocel |
| Držící síla FZh | 2000 N |
| Princip jištění | Princip pracovního proudu |
Charakteristické hodnoty podle EN ISO 13849-1 a EN IEC 62061
| PL | Maximální SIL | PFHD | Kategorie | Doba provozu | |
|---|---|---|---|---|---|
| Monitorování polohy ochranného krytu | PL e | 3 | 4.07x10-8 | 4 | 20 y |
| Monitorování jištění ochranného krytu | PL e | 3 | 4.07x10-8 | 4 | 20 y |
Různé
| Vkládací štítek | |||||||
| |||||||
| Další funkce | Vč. sady clonek, id. č. 120344 | ||||||
Rozhraní
| Datový protokol sběrnice | Profinet (IEC 61158 type 10) |
| Datový protokol – zabezpečení | Profisafe (IEC 61784-3-3) |
| Datové rozhraní | Ethernet |
Příslušenství
Ke stažení
Celé balení
Stáhněte si všechny důležité dokumenty jedním kliknutím.
Obsahuje:
- Návod k použití a příp. dodatky k návodu k použití nebo stručné návody
- Příp. datové listy jako dodatek k návodu k použití
- Prohlášení o shodě
Stáhnout kompletní balíček (ZIP, 6,5 MB)
Jednotlivé dokumenty
Pokyny
Operating Instructions Safety Systems MGB-L..B-PN.-… (PROFINET) and With Data Structure Type B
Č. dok.
Verze
Jazyk
Velikost
Operating Instructions Safety Systems MGB-L..B-PN.-… (PROFINET) and With Data Structure Type B
Č. dok.
2115174
Verze
03/24
Jazyk
Velikost
3,9 MB
Betriebsanleitung Sicherheitssysteme MGB-L..B-PN.-… (PROFINET) und mit Datenstruktur Typ B
Č. dok.
2115174
Verze
03/24
Jazyk
Velikost
3,9 MB
Prohlášení o shodě
EU-Konformitätserklärung
Č. dok.
Verze
Jazyk
Velikost
EU-Konformitätserklärung
Č. dok.
EDC2123624
Verze
Jazyk
Velikost
0,2 MB
UKCA-Konformitätserklärung
Č. dok.
Verze
Jazyk
Velikost
UKCA-Konformitätserklärung
Č. dok.
EDC20001506
Verze
Jazyk
Velikost
0,1 MB
Ostatní dokumenty
Schválení a certifikáty
FCC
Č. dok.
Verze
Jazyk
Velikost
FCC
Č. dok.
20001708
Verze
Jazyk
Velikost
0,1 MB
Information EU Data Act
Č. dok.
Verze
Jazyk
Velikost
Information EU Data Act
Č. dok.
ECO20001824
Verze
Jazyk
Velikost
0,1 MB
Profisafe
Č. dok.
Verze
Jazyk
Velikost
Profisafe
Č. dok.
Verze
Jazyk
Velikost
0,2 MB
TUEV Süd München
Č. dok.
Verze
Jazyk
Velikost
TUEV Süd München
Č. dok.
Verze
Jazyk
Velikost
0,4 MB
WEEE
Č. dok.
Verze
Jazyk
Velikost
WEEE
Č. dok.
ECO20001806
Verze
Jazyk
Velikost
0,1 MB
c UL us
Č. dok.
Verze
Jazyk
Velikost
c UL us
Č. dok.
Verze
Jazyk
Velikost
0,7 MB
Objednací údaje
| Obj. č. | 125577 |
| Název výrobku | MGB-L2B-PNA-L-125577 |
| Hmotnost brutto | 3,kg |
| Číslo celního tarifu | 85371098 |
| ECLASS | 27-27-24-05 Safety-related transponder switch with guardlocking |








