TP3-2131A024MC1761 (Obj. č. 084290)
Bezpečnostní spínač TP, kabelový vstup M20 × 1,5, kontakty pro signalizaci polohy dveří
- 3× kabelový vstup M20 × 1,5
- Kontakty pro signalizaci polohy dveří
- Pomocný odjišťovací prvek
- Dodatečný kabelový vstup
- Princip klidového proudu

Popis
Směr nájezdu
Horizontálně a vertikálně
Možnost nastavení v krocích po 90 stupních.
Větší volný chod při horizontálním směru nájezdu.
Jestliže při zavřených dveřích potřebujete větší nepřesnost, můžete zvolit aktuátor s volným chodem. S tímto aktuátorem se dveře mohou v zavřeném stavu nepatrně pohybovat ve směru ovládání. To je důležité například tehdy, když jsou dveře vybaveny pryžovým dorazem. Aktuátor s volným chodem umožňuje zmenšit trvalý tlak stlačeného pryžového dorazu. Tím se snižuje namáhání jak hlavy spínače, tak mechaniky dveří.
Princip jištění
Klidový proud (Power to unlock): U ochranného krytu s jištěním na principu klidového proudu je ochranný kryt jištěn silou pružiny, dokud je do jisticího elektromagnetu přiváděn proud. Odjištění probíhá silou elektromagnetu. Tato varianta se také označuje jako mechanické jištění ochranného krytu.
Spínací jednotka
2131 | Pomalý spínací člen |
Kontakty pro signalizaci stavu jištění ochranného krytu: 2× nuceně rozpínaný kontakt | |
Kontakty pro monitorování polohy dveří: 1× rozpínací kontakt |
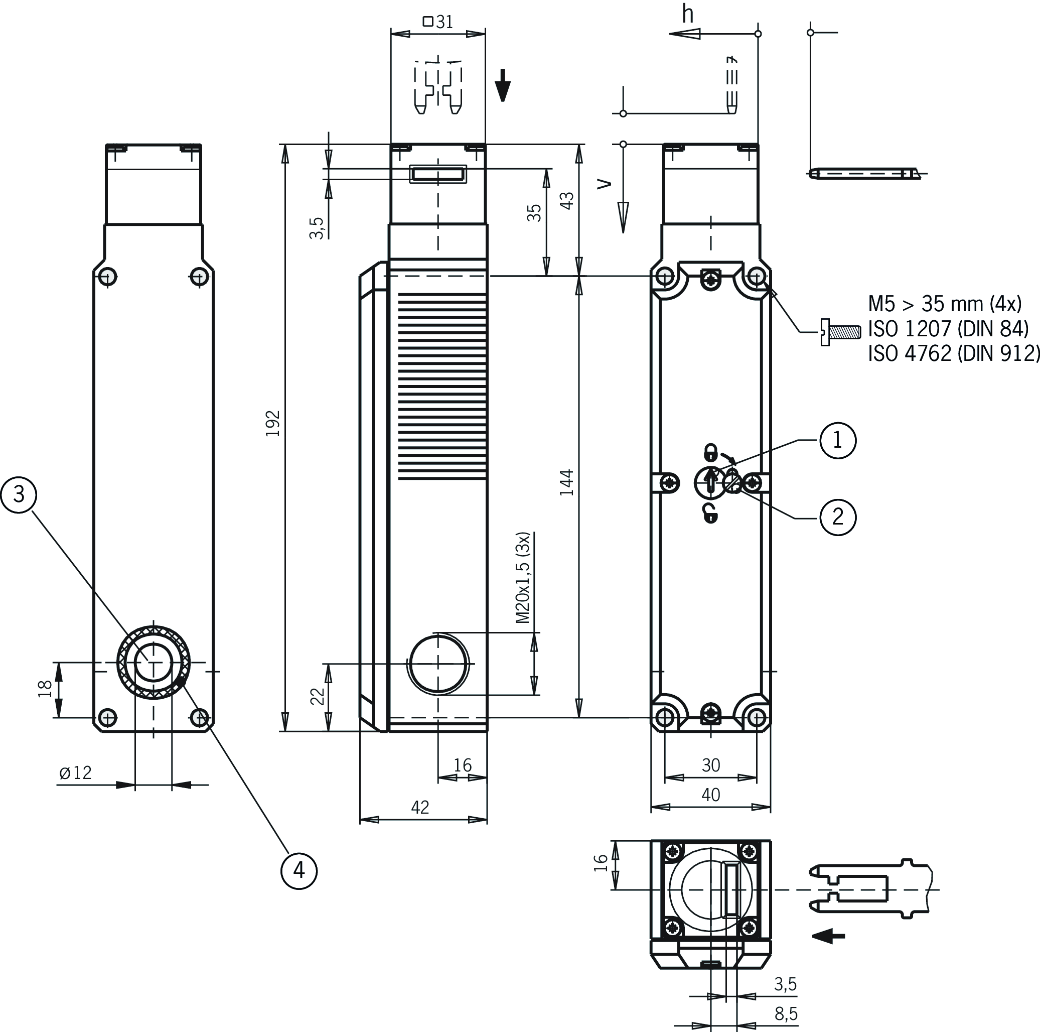
Pomocný odjišťovací prvek
Pomocný odjišťovací prvek na čelní straně umožňuje přistupovat ke stroji v případě chybného fungování, například při výpadku napětí. Odjištění se provádí nástrojem nebo klíčem. Pomocný odjišťovací prvek musí být zajištěn proti zneužití (plomba, přelakování).
Potřebné příslušenství
Aktuátor není součástí dodávky.




Funkční výkresy

Rozměrové výkresy

| 1 | Pomocný odjišťovací prvek |
| 2 | Pojistný šroub |
| 3 | Kabelový vstup (C1761) na zadní straně pouzdra |
| 4 | Ploché těsnění |
Příklady připojení

![]() | Monitorování polohy dveří |
![]() | Monitorování elektromagnetu |
Technické údaje
Schválení



Hodnoty elektrického připojení
| Zajištění | max. 4 A gG |
| Příkon | 8 W |
| Průřez přípojky | 0.34 ... 1.5 mm² |
| Návrhové izolační napětí Ui | 250 V |
| Jmenovité impulzní napětí Uimp | 2.5 kV |
| Kategorie použití | |
| DC-13 | 4 A 24 V |
| AC-15 | 4 A 230 V |
| Napájecí napětí elektromagnetu | |
| AC/DC | 24 V -15% ... +10% |
| Zatěžovatel elektromagnetu DZ | 100 % |
| Spínací napětí | |
| Min. při 10 mA | 12 V |
| Spínací proud | |
| Min. při 24 V | 1 mA |
| Tepelný návrhový proud Ith | 4 A |
Mechanické hodnoty a prostředí
| Anfahrgeschwindigkeit | max. 20 m/min |
| Typ připojení | |
| 3× | M20 × 1,5 |
| Počet rozpínacích kontaktů pro monitorování polohy dveří | 1 |
| Počet spínacích kontaktů pro monitorování stavu jištění | 1 |
| Počet nuceně rozpínaných kontaktů pro monitorování stavu jištění | 2 |
| Vytahovací síla | 20 N |
| Frekvence ovládání | max. 1200 1/h |
| Ovládací síla | 10 N |
| Montážní poloha | Libovolná |
| Teplota při skladování | -25 ... 70 °C |
| Mechanická životnost | 1 x 10⁶ |
| Přidržovací síla | 10 N |
| Princip přepínání | Pomalý spínací člen |
| Třída ochrany | IP67 |
| Okolní teplota | -20 ... 55 °C |
| Materiál | |
| Kontakt | Slitina stříbra, velmi tenké pozlacení |
| Pouzdro | Termoplast zesílený skelnými vlákny |
| Držící síla Fmax | 1300 N |
| Držící síla FZh | 1000 N |
| Princip jištění | Princip klidového proudu |
Charakteristické hodnoty podle EN ISO 13849-1 a EN IEC 62061
| B10D | Doba provozu | |
|---|---|---|
| Monitorování jištění ochranného krytu | 3x106 | 20 y |
| Důležité! Hodnoty platí při DC-13 100 mA / 24 V | ||
| PL | Maximální SIL | Kategorie | Doba provozu | |
|---|---|---|---|---|
| Ovládání jištění ochranného krytu | V závislosti na externím ovládání jištění ochranného krytu | 20 y | ||
Různé
| Číslo C | |
| C1761 | Kabelový vstup na zadní straně pouzdra |
V kombinaci s aktuátorem BETAETIGER-P-GT
| Volný chod při horizontálním směru nájezdu | 2 mm |
| Volný chod při vertikálním směru nájezdu | 1.5 mm |
V kombinaci s aktuátorem BETAETIGER-P-GNT
| Volný chod při horizontálním směru nájezdu | 7 mm |
Příslušenství
RIEGEL 0 NP/TP OHNE RASTUNG
- Petlice pro bezpečnostní spínače NP... a TP...A
- Ocelová petlice
- Pro dveře se závěsy nalevo nebo napravo
- Vhodné pro mezeru mezi dveřmi a rámem cca 6 mm

RIEGEL 1 NP/TP 1X RASTUNG ZU
- Petlice pro bezpečnostní spínače NP...AS,TP...A a GP
- Ocelová petlice
- Pro dveře se závěsy nalevo nebo napravo
- Vhodné pro mezeru mezi dveřmi a rámem cca 15 mm
AE-B-A1-02,0-096230
- Lze použít buď jako únikový odjišťovací prvek, nebo jako nouzový odjišťovací prvek
- Bez samočinného návratu do výchozí polohy
- Délka pláště 2 m (délka lanka 6 m)
AE-B-A1-02,0-F-097747
- Lze použít buď jako únikový odjišťovací prvek, nebo jako nouzový odjišťovací prvek
- Samočinný návrat do výchozí polohy
- Délka pláště 2 m (délka lanka 6 m)
AE-B-A1-03,0-098313
- Lze použít buď jako únikový odjišťovací prvek, nebo jako nouzový odjišťovací prvek
- Bez samočinného návratu do výchozí polohy
- Délka pláště 3 m (délka lanka 6 m)
AE-B-A1-03,0-F-111233
- Lze použít buď jako únikový odjišťovací prvek, nebo jako nouzový odjišťovací prvek
- Samočinný návrat do výchozí polohy
- Délka pláště 3 m (délka lanka 6 m)
AE-B-A1-04,0-098314
- Lze použít buď jako únikový odjišťovací prvek, nebo jako nouzový odjišťovací prvek
- Bez samočinného návratu do výchozí polohy
- Délka pláště 4 m (délka lanka 6 m)
AE-B-A1-06,0-125582
- Lze použít buď jako únikový odjišťovací prvek, nebo jako nouzový odjišťovací prvek
- Bez samočinného návratu do výchozí polohy
- Délka lanka 6 m (bez pláště)
AE-B-A1-06,0-F-124770
- Lze použít buď jako únikový odjišťovací prvek, nebo jako nouzový odjišťovací prvek
- Samočinný návrat do výchozí polohy
- Délka lanka 6 m (bez pláště)

AE-K-A1-DULK1-84177
- Zámek s unikátním zamykáním
- Klíč lze vytáhnout v poloze „odjištěno“, „zajištěno“

AE-K-A1-ILK1-121917
- Univerzální zámek
- Klíč lze vytáhnout v poloze „zajištěno“

AE-K-A1-IUK2-109212
- Univerzální zámek
- Klíč lze vytáhnout jen v poloze „odjištěno“

AE-K-A1-IULK1-86236
- Univerzální zámek
- Klíč lze vytáhnout v poloze „odjištěno“, „zajištěno“
Ke stažení
Celé balení
Stáhněte si všechny důležité dokumenty jedním kliknutím.
Obsahuje:
- Návod k použití a příp. dodatky k návodu k použití nebo stručné návody
- Příp. datové listy jako dodatek k návodu k použití
- Prohlášení o shodě
Jednotlivé dokumenty
Ostatní dokumenty
CAD/eCAD
Objednací údaje
| Obj. č. | 084290 |
| Název výrobku | TP3-2131A024MC1761 |
| Hmotnost brutto | 0,452kg |
| Číslo celního tarifu | 85365019000 |
| ECLASS | 27-27-26-03 Safety switch with guard control |
+ 1× spínací kontakt


























