BTC-T/GP-S-TH-01-F (Obj. č. 106302)
Zvolte obsah
Petlice BTC-T/GP... s únikovým odjišťovacím prvkem pro bezpečnostní spínače GP a TP
- Hliníková petlice
- Pro dveře se závěsy nalevo nebo napravo
- Páka k únikovému odsunutí petlice a otevření dveří zevnitř nebezpečného prostoru.
- Tlačítko v otevřené poloze
- V otevřené poloze možnost zamknutí visacími zámky
- Aktuátor je součástí dodávky

Popis
Přednosti
- Stabilní provedení
- Snadná montáž pomocí šroubových spojů na běžné hliníkové profily a kryt stroje
- Žlutá barva zajišťuje dobrou viditelnost
- Nepotřebujete dodatečnou dveřní kliku
Upozornění
- Petlice jsou vhodné pro konstrukční řadu TP...A a GP
- Bezpečnostní spínač objednávejte zvlášť
Zvláštnosti
- Petlice s aretací
- V otevřené poloze je petlice aretována, čímž se zamezuje jejímu nechtěnému zavření. Odjištění stisknutím knoflíku.

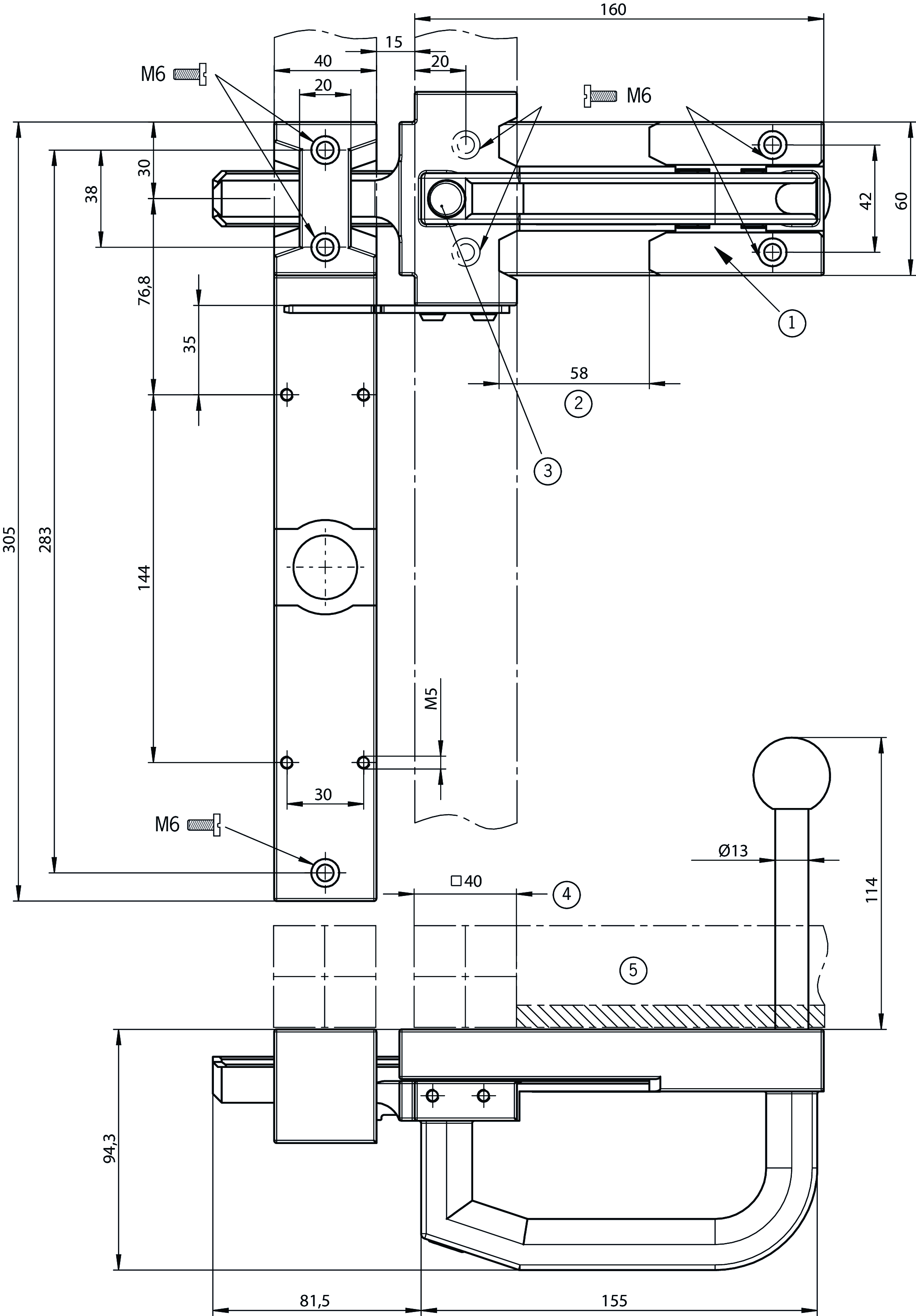
Rozměrové výkresy

| 1 | Upozornění: Petlici lze díky symetrické konstrukci použít s dveřmi se závěsy napravo i nalevo. |
| 2 | Otevírací dráha |
| 3 | V otevřené poloze je petlice aretována, čímž se zamezuje jejímu nechtěnému zavření. Odjištění stisknutím knoflíku. |
| 4 | Rám ochranné mříže (40 × 40) |
| 5 | Dveře se závěsy napravo |
Technické údaje
Mechanické hodnoty a prostředí
| Směr nájezdu | A nebo C |
| Počet instalovatelných bezpečnostních spínačů | 1 |
| Únikový odjišťovací prvek | Ano |
| Teplota při skladování | -25 ... 70 °C |
| Materiál | |
| Základová deska | Hliník |
| Konzola spínače | Hliník |
| Vodicí lišty | Hliník |
| Rukojeť | Hliník |
Různé
| Aretace v otevřené poloze | Aretace pomocí čepu |
Ke stažení
Celé balení
Stáhněte si všechny důležité dokumenty jedním kliknutím.
Obsahuje:
- Návod k použití a příp. dodatky k návodu k použití nebo stručné návody
- Příp. datové listy jako dodatek k návodu k použití
- Prohlášení o shodě
Stáhnout kompletní balíček (ZIP, 9,2 MB)
Jednotlivé dokumenty
Pokyny
Bezpečnostní informace pro petlice
Č. dok.
Verze
Jazyk
Velikost
Bezpečnostní informace pro petlice
Č. dok.
2530033
Verze
04-03/24
Jazyk
Velikost
0,5 MB
Safety Information for Bolts
Information de sécurité pour verrous-targettes
Información de seguridad para cerrojos
Sicherheitsinformation für Riegel
Information de sécurité pour verrous-targettes
Información de seguridad para cerrojos
Sicherheitsinformation für Riegel
Č. dok.
2530033
Verze
04-03/24
Jazyk
Velikost
0,2 MB
Sicherheitsinformation für Riegel
Č. dok.
2530033
Verze
04-03/24
Jazyk
Velikost
0,2 MB
Informação de segurança referente ao trinco
Č. dok.
2530033
Verze
04-03/24
Jazyk
Velikost
0,4 MB
Informazioni sulla sicurezza per il chiavistello
Č. dok.
2530033
Verze
04-03/24
Jazyk
Velikost
0,1 MB
Tolózár biztonsági információi
Č. dok.
2530033
Verze
04-03/24
Jazyk
Velikost
0,5 MB
Информация за безопасност за ригели
Č. dok.
2530033
Verze
04-03/24
Jazyk
Velikost
0,5 MB
Sikkerhedsinformation for bolte
Č. dok.
2530033
Verze
04-03/24
Jazyk
Velikost
0,4 MB
Ohutusalane teave riivistuste kohta
Č. dok.
2530033
Verze
04-03/24
Jazyk
Velikost
0,5 MB
Turvallisuustietoja salvalle
Č. dok.
2530033
Verze
04-03/24
Jazyk
Velikost
0,4 MB
Πληροφορίες ασφαλείας για μάνδαλα
Č. dok.
2530033
Verze
04-03/24
Jazyk
Velikost
0,5 MB
Sigurnosne informacije za brave
Č. dok.
2530033
Verze
04-03/24
Jazyk
Velikost
0,5 MB
Aizbīdņu drošības informācija
Č. dok.
2530033
Verze
04-03/24
Jazyk
Velikost
0,5 MB
Saugos informacija skląsčiui
Č. dok.
2530033
Verze
04-03/24
Jazyk
Velikost
0,5 MB
Veiligheidsinformatie voor grendels
Č. dok.
2530033
Verze
04-03/24
Jazyk
Velikost
0,4 MB
Sikkerhetsinformasjon for låser
Č. dok.
2530033
Verze
04-03/24
Jazyk
Velikost
0,4 MB
Informacje o bezpieczeństwie dotyczące użytkowania zasuw
Č. dok.
2530033
Verze
04-03/24
Jazyk
Velikost
0,5 MB
Säkerhetsinformation för regeln
Č. dok.
2530033
Verze
04-03/24
Jazyk
Velikost
0,4 MB
Varnostne informacije o zapahu
Č. dok.
2530033
Verze
04-03/24
Jazyk
Velikost
0,5 MB
Bezpečnostná informácia pre závory
Č. dok.
2530033
Verze
04-03/24
Jazyk
Velikost
0,5 MB
Sürgüler için güvenlik bilgisi
Č. dok.
2530033
Verze
04-03/24
Jazyk
Velikost
0,5 MB
Informații de siguranță privind zăvoarele
Č. dok.
2530033
Verze
04-03/24
Jazyk
Velikost
0,5 MB
Ostatní dokumenty
Prodejní doklady
Bezpečnostní spínače s plastovým pouzdrem
Č. dok.
Verze
Jazyk
Velikost
Bezpečnostní spínače s plastovým pouzdrem
Č. dok.
121649
Verze
11-03/18
Jazyk
Velikost
6,5 MB
Safety Switches with Plastic Housing
Č. dok.
096956
Verze
11-03/18
Jazyk
Velikost
6,5 MB
Interrupteurs de sécurité avec boîtier plastique
Č. dok.
100677
Verze
11-03/18
Jazyk
Velikost
6,6 MB
Interruptores de seguridad con carcasa plástica
Č. dok.
104855
Verze
11-03/18
Jazyk
Velikost
6,6 MB
Sicherheitsschalter mit Kunststoffgehäuse
Č. dok.
096955
Verze
11-03/18
Jazyk
Velikost
6,6 MB
塑料壳体 的安全开关
Č. dok.
116243
Verze
11-03/18
Jazyk
Velikost
6,1 MB
CAD/eCAD
Objednací údaje
| Obj. č. | 106302 |
| Název výrobku | BTC-T/GP-S-TH-01-F |
| Hmotnost brutto | 1,378kg |
| Číslo celního tarifu | 83014090000 |

