RIEGEL TP/GP-AC (Obj. č. 100760)
Zvolte obsah
Petlice pro bezpečnostní spínače GP a TP
- Petlice pro 2 bezpečnostní spínače GP a TP
- Ocelová petlice
- Pro dveře se závěsy napravo nebo nalevo
- Vhodné pro mezeru mezi dveřmi a rámem cca 15 mm

Popis
Rozsah dodávky
- Části petlice
- Aktuátor
Objednávejte zvlášť:
- Bezpečnostní spínač
Typy dveří a dveřní doraz
Vhodná pro dveře na pantech a posuvné dveře
Vhodná pro dveře se závěsy nalevo i napravo
S dveřním dorazem, dveře nelze otevírat dovnitř.
Integrovaný zajišťovací mechanismus
Integrovaný zajišťovací mechanismus umožňuje zajistit petlici například pomocí zámků v otevřené poloze. Tím lze zamezit nechtěnému uzavření osob v nebezpečném prostoru.

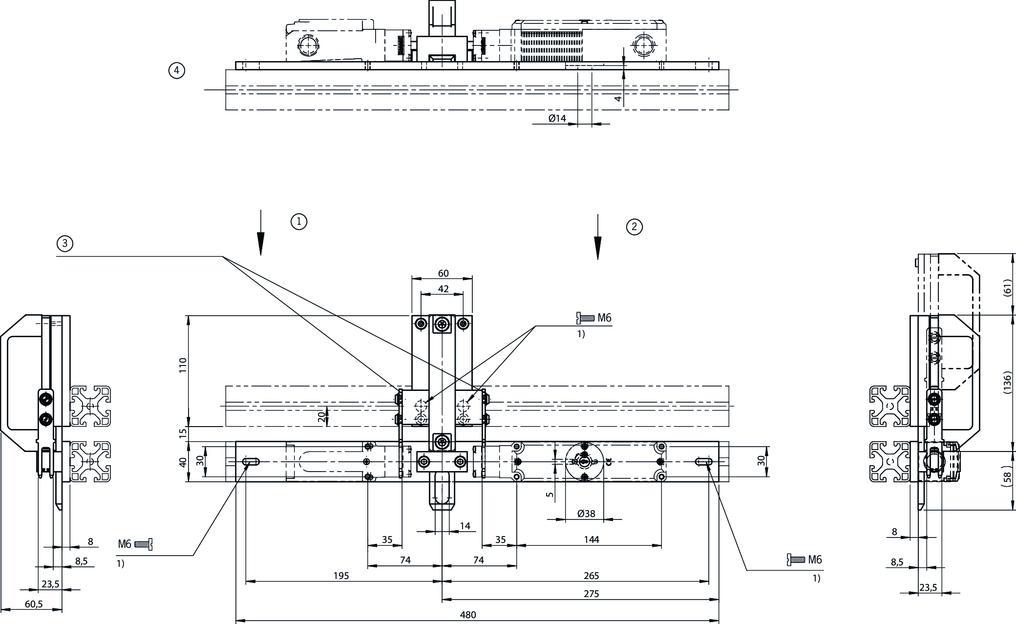
Rozměrové výkresy

| 1 | Bezpečnostní spínač GP, směr nájezdu C |
| 1) | Tyto šrouby musejí být pevně spojeny s ochranným krytem tak, aby je nebylo možné vyšroubovat; zajistěte je například zalepením nebo převrtáním vnitřního šestihranu |
| 2 | Bezpečnostní spínač TP, směr nájezdu A |
| 3 | Aktuátory musejí být pevně spojeny s petlicí tak, aby je nebylo možné odmontovat, např. pomocí přiložených jednorázových šroubů! |
| 4 | Pozor! Petlice se nesmí používat ve spojení s únikovým odjišťovacím prvkem! |
Technické údaje
Mechanické hodnoty a prostředí
| Směr nájezdu | A nebo C |
| Počet instalovatelných bezpečnostních spínačů | 2 |
| Únikový odjišťovací prvek | Žádné |
| Teplota při skladování | -25 ... 70 °C |
| Materiál | |
| Rukojeť | Plast |
| Konzola spínače | Ocel s práškovým nástřikem |
| Vodicí lišty | Plast |
| Základová deska | Zinkovaná ocel |
Různé
| Aretace v otevřené poloze | Kulový aretační mechanismus |
Ke stažení
Celé balení
Stáhněte si všechny důležité dokumenty jedním kliknutím.
Obsahuje:
- Návod k použití a příp. dodatky k návodu k použití nebo stručné návody
- Příp. datové listy jako dodatek k návodu k použití
- Prohlášení o shodě
Stáhnout kompletní balíček (ZIP, 9,2 MB)
Pokyny
Bezpečnostní informace pro petlice
Č. dok.
Verze
Jazyk
Velikost
Bezpečnostní informace pro petlice
Č. dok.
2530033
Verze
04-03/24
Jazyk
Velikost
0,5 MB
Safety Information for Bolts
Information de sécurité pour verrous-targettes
Información de seguridad para cerrojos
Sicherheitsinformation für Riegel
Information de sécurité pour verrous-targettes
Información de seguridad para cerrojos
Sicherheitsinformation für Riegel
Č. dok.
2530033
Verze
04-03/24
Jazyk
Velikost
0,2 MB
Sicherheitsinformation für Riegel
Č. dok.
2530033
Verze
04-03/24
Jazyk
Velikost
0,2 MB
Informação de segurança referente ao trinco
Č. dok.
2530033
Verze
04-03/24
Jazyk
Velikost
0,4 MB
Informazioni sulla sicurezza per il chiavistello
Č. dok.
2530033
Verze
04-03/24
Jazyk
Velikost
0,1 MB
Tolózár biztonsági információi
Č. dok.
2530033
Verze
04-03/24
Jazyk
Velikost
0,5 MB
Информация за безопасност за ригели
Č. dok.
2530033
Verze
04-03/24
Jazyk
Velikost
0,5 MB
Sikkerhedsinformation for bolte
Č. dok.
2530033
Verze
04-03/24
Jazyk
Velikost
0,4 MB
Ohutusalane teave riivistuste kohta
Č. dok.
2530033
Verze
04-03/24
Jazyk
Velikost
0,5 MB
Turvallisuustietoja salvalle
Č. dok.
2530033
Verze
04-03/24
Jazyk
Velikost
0,4 MB
Πληροφορίες ασφαλείας για μάνδαλα
Č. dok.
2530033
Verze
04-03/24
Jazyk
Velikost
0,5 MB
Sigurnosne informacije za brave
Č. dok.
2530033
Verze
04-03/24
Jazyk
Velikost
0,5 MB
Aizbīdņu drošības informācija
Č. dok.
2530033
Verze
04-03/24
Jazyk
Velikost
0,5 MB
Saugos informacija skląsčiui
Č. dok.
2530033
Verze
04-03/24
Jazyk
Velikost
0,5 MB
Veiligheidsinformatie voor grendels
Č. dok.
2530033
Verze
04-03/24
Jazyk
Velikost
0,4 MB
Sikkerhetsinformasjon for låser
Č. dok.
2530033
Verze
04-03/24
Jazyk
Velikost
0,4 MB
Informacje o bezpieczeństwie dotyczące użytkowania zasuw
Č. dok.
2530033
Verze
04-03/24
Jazyk
Velikost
0,5 MB
Säkerhetsinformation för regeln
Č. dok.
2530033
Verze
04-03/24
Jazyk
Velikost
0,4 MB
Varnostne informacije o zapahu
Č. dok.
2530033
Verze
04-03/24
Jazyk
Velikost
0,5 MB
Bezpečnostná informácia pre závory
Č. dok.
2530033
Verze
04-03/24
Jazyk
Velikost
0,5 MB
Sürgüler için güvenlik bilgisi
Č. dok.
2530033
Verze
04-03/24
Jazyk
Velikost
0,5 MB
Informații de siguranță privind zăvoarele
Č. dok.
2530033
Verze
04-03/24
Jazyk
Velikost
0,5 MB
Objednací údaje
| Obj. č. | 100760 |
| Název výrobku | RIEGEL TP/GP-AC |
| Hmotnost brutto | 2,664kg |
| Číslo celního tarifu | 83014090000 |
